Withdrawn | Lot 61

10 Grove Road, Melton Constable, Norfolk NR24 2DE

Withdrawn

  • Terraced House
  • Tenure: Freehold

Call the team on 01603 505 100 for more information

Auction Date

Wed 12/02/2025

Auction Time

11:00

Auction Venue

Livestream Auction

Three bedroom well presented period terraced cottage originally built for the railway workers with off road parking space to rear.

This three bedroom former railways workers cottage is offered in good decorative order throughout and is fully double glazed with ground floor modern shower room and oil fired boiler fitted in 2023 (please refer to legal pack). Melton Constable is a conservation area on account of its history as a railway settlement with it own local amenities which includes primary school. doctor and village shop and lies approximately 5.5 miles Southwest of the popular Market Town of Holt and just a short drive from Aylsham, both with a range of restaurants/pubs, regular markets, and local boutique shops.

Tenure

Freehold

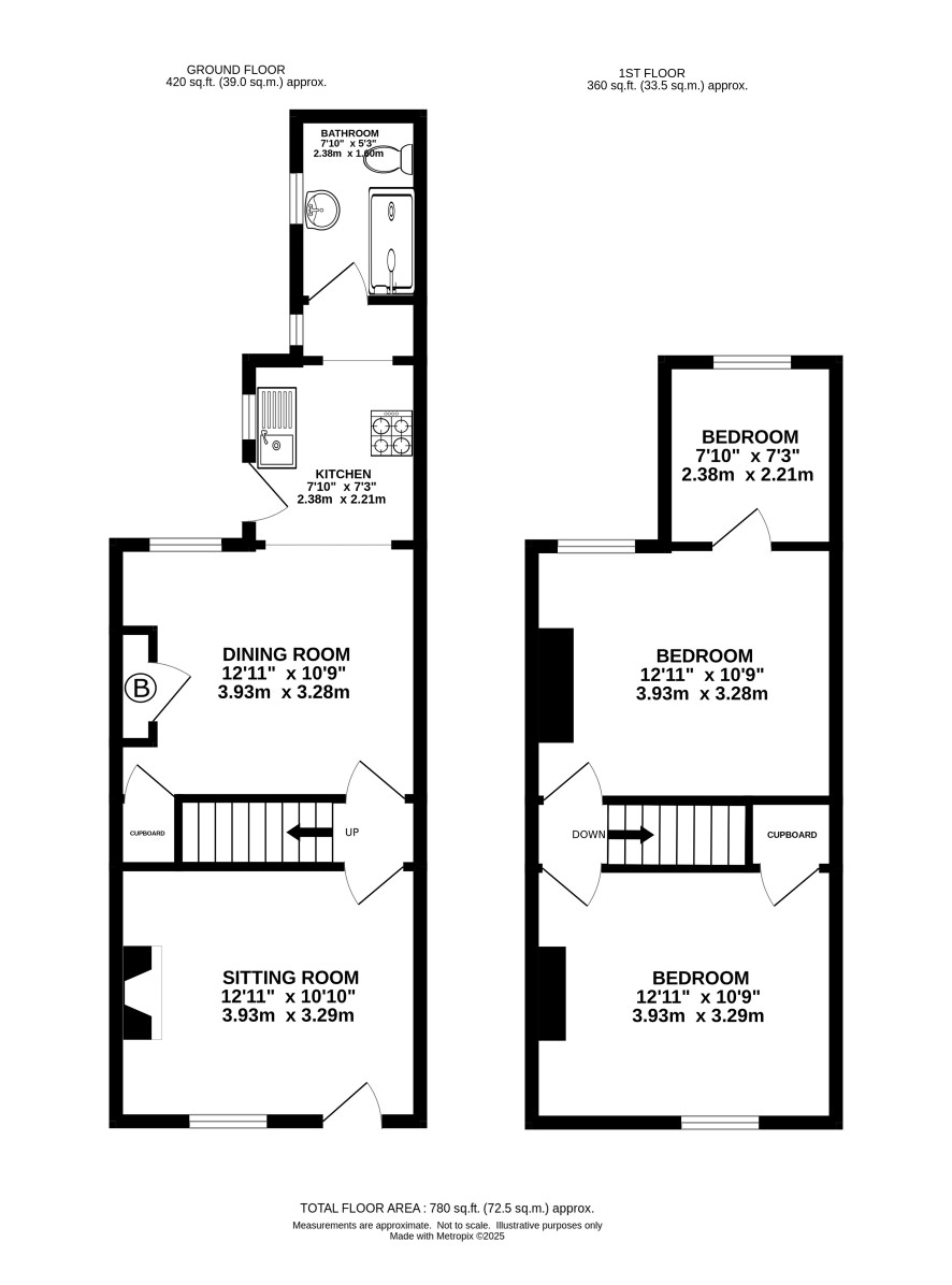
Ground Floor

Sitting room, dining room, kitchen and shower room

First Floor

Two Double Bedrooms with third single bedroom off the second bedroom.

Outside

Steps up to the front door.. Rear garden with parking for one car to the rear. Oil fired Heating to radiators, mains water and mains drainage.

Viewings

Viewings are currently being arranged and the next available day is Friday 7th January

Location

Melton Constable is a popular, historical village. Previously hosting a railway station, the beautiful period terraced houses were originally built for the railway workers. The village hosts a local shop, primary school and doctors Surgery. Melton Constable lies 5.5 miles Southwest of the popular Market Town of Holt

Council Tax Band

A

Energy Efficiency Rating (EPC)

Current Rating E

Services

Interested parties are requested to make their own enquiries to the relevant authorities as to the availability of services.

Local Authority

North Norfolk District Council

Solicitors

Hayes and Storr (Fakenham), Ref: John Perry, Tel: 01328 863231

Offered in association with

Bailey Bird and Warren

Important Notice to Prospective Buyers:

We draw your attention to the Special Conditions of Sale within the Legal Pack, referring to other charges in addition to the purchase price which may become payable. Such costs may include Search Fees, reimbursement of Sellers costs and Legal Fees, and Transfer Fees amongst others.

Additional Fees

Buyer's Premium - £600 inc VAT payable on exchange of contracts.

Administration Charge - £1200 inc VAT payable on exchange of contracts.

Disbursements - Please see the legal pack for any disbursements listed that may become payable by the purchaser on completion.

View Larger Map

Disclaimer: The map preview provided above is for general guidance only and may not accurately reflect the exact location or surrounding buildings. Prospective buyers and interested parties are strongly advised to independently verify the precise location and surroundings before bidding.