Withdrawn | Lot 109

11 Stafford Road, Great Yarmouth, Norfolk NR31 0HA

Withdrawn

  • Terraced House
  • Tenure: Freehold

Call the team on 01603 505 100 for more information

Auction Date

Wed 12/02/2025

Auction Time

11:00

Auction Venue

Livestream Auction

Residential investment comprising a three bedroom terrace house let producing £7,280 pa

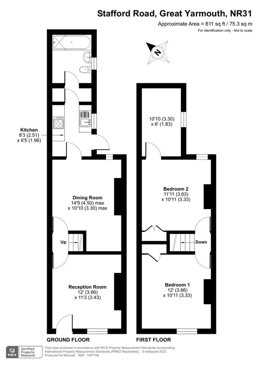
This three bedroom mid terraced property extends to around 811 sq/ft. It is currently let at £140 per week (£7,280 pa) on a periodic six month assured shorthold tenancy dated 11th November 2023. The property requires some improvement and benefits from gas central heating and has double glazed windows. The property is located north of the town centre near to a comprehensive range of amenities. It would make an ideal purchase for a buy to let investor.

Tenure

Freehold

Ground floor

Reception room, dining room, kitchen, bathroom

First floor

Three bedrooms

Outside

Small front garden, rear garden

Council Tax Band

A

Viewings

Viewings are arranged in conjunction with the tenants. The next are on Tuesday 25 February and Thursday 6 March. To book an appointment please call the Norwich office.

Energy Efficiency Rating (EPC)

Current Rating D

Services

Interested parties are requested to make their own enquiries to the relevant authorities as to the availability of services.

Local Authority

Great Yarmouth Borough Council

Solicitors

22 Law, Ref: Claire Stanton, Tel: 0191 4270770

Important Notice to Prospective Buyers:

We draw your attention to the Special Conditions of Sale within the Legal Pack, referring to other charges in addition to the purchase price which may become payable. Such costs may include Search Fees, reimbursement of Sellers costs and Legal Fees, and Transfer Fees amongst others.

Additional Fees

Buyer's Premium - £600 inc VAT payable on exchange of contracts.

Administration Charge - £1200 inc VAT payable on exchange of contracts.

Disbursements - Please see the legal pack for any disbursements listed that may become payable by the purchaser on completion.

View Larger Map

Disclaimer: The map preview provided above is for general guidance only and may not accurately reflect the exact location or surrounding buildings. Prospective buyers and interested parties are strongly advised to independently verify the precise location and surroundings before bidding.