For Sale By Auction | 11:00, 26 March 2025 | Lot 8

6 Cromwell Close, Hethersett, Norwich, Norfolk NR9 3HD

Sold £155,000

  • Semi-Detached House
  • 3 Bedrooms
  • Tenure: Freehold

Call the team on 01603 505 100 for more information

Auction Date

Wed 26/03/2025

Auction Time

11:00

Auction Venue

Livestream Auction

Three bedroom semi detached house requiring modernisation and redecoration

Situated in the desirable village of Hethersett, this ex local authority semi detached house is now vacant and in need of modernisation to realise its full potential. Accessed via a public footpath, the property benefits from good sized front and rear gardens, has gas central heating and double glazing. This property is ideal for owner occupation or investment. Hethersett is just over 6 miles from Norwich City Centre and is well served by a wide range of facilities including shops, schools and regular public transport.

Tenure

Freehold

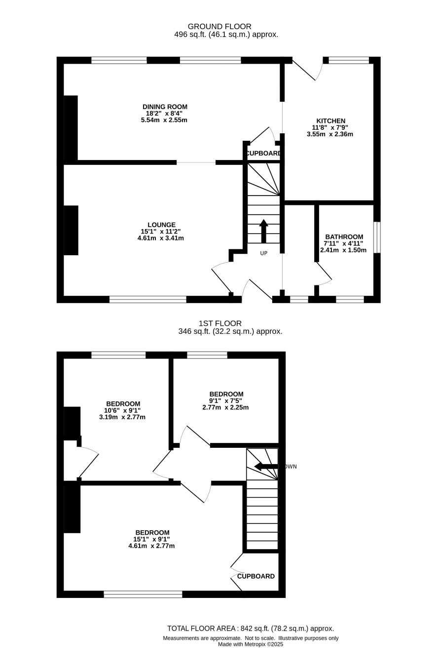
Ground Floor

Entrance, lounge, dining room, kitchen, bathroom

First Floor

Landing, three bedrooms

Outside

Good size front and rear garden

Council Tax Band

B

Viewings

Viewings are being held and the next opportunities to view are on Thursday 13 March. Please contact the Norwich Office to book your appointment

Energy Efficiency Rating (EPC)

Current Rating C

Services

Interested parties are requested to make their own enquiries to the relevant authorities as to the availability of services.

Local Authority

South Norfolk Council

Solicitors

Howes Percival (Norwich), Ref: Sally Rackham, Tel: 01603 284250

Important Notice to Prospective Buyers:

We draw your attention to the Special Conditions of Sale within the Legal Pack, referring to other charges in addition to the purchase price which may become payable. Such costs may include Search Fees, reimbursement of Sellers costs and Legal Fees, and Transfer Fees amongst others.

Additional Fees

Buyer's Premium - £900 inc VAT payable on exchange of contracts.

Administration Charge - £1200 inc VAT payable on exchange of contracts.

Disbursements - Please see the legal pack for any disbursements listed that may become payable by the purchaser on completion.

View Larger Map

Disclaimer: The map preview provided above is for general guidance only and may not accurately reflect the exact location or surrounding buildings. Prospective buyers and interested parties are strongly advised to independently verify the precise location and surroundings before bidding.