For Sale By Auction | 11:00, 26 March 2025 | Lot 104

Medina Cottage, Heath Road, Hickling, Norwich, Norfolk NR12 0AX

Sold £186,000

  • Detached House
  • 2 Bedrooms
  • Tenure: Freehold

Call the team on 01603 505 100 for more information

Auction Date

Wed 26/03/2025

Auction Time

11:00

Auction Venue

Livestream Auction

Rare opportunity to acquire this detached Victorian house on the edge of the village of Hickling. The property is close to the Norfolk Broads and in need of some modernisation

This substantial two bedroom Victorian cottage is situated on the edge of the desirable village of Hickling known for Hickling Broad one of the famous Norfolk Broads. The cottage is in need of some modernisation and has been owned for over 60 years by the same family. The property would make a lovely family home once improvements have been made or for those of you looking for a quiet spot in Norfolk it could make an ideal holiday home. There is parking, front and rear gardens and the property is heated by propane gas and has a septic tank. Viewings are strongly recommended.

Tenure

Freehold

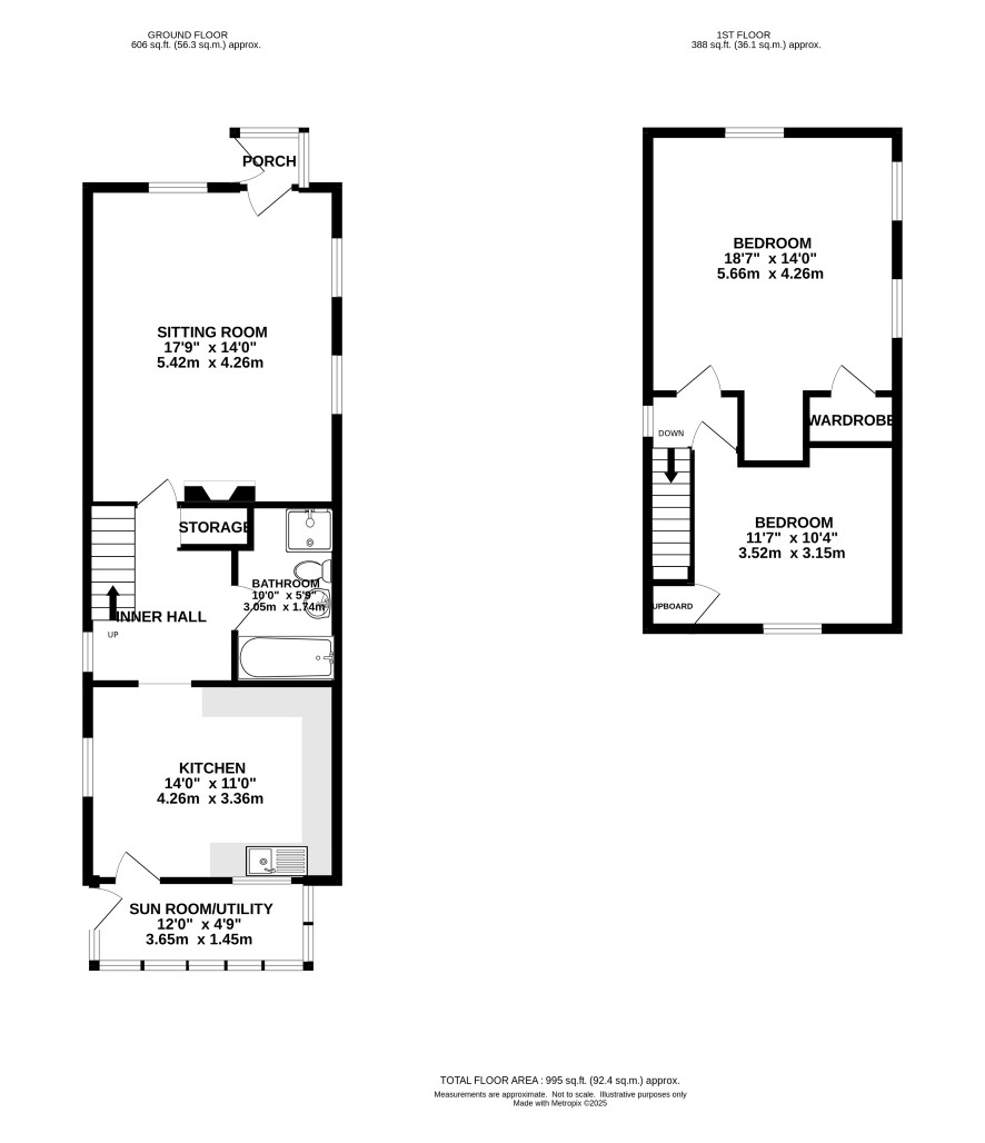
Ground floor

Front porch, sitting room, inner hall with stairs to first floor, bathroom, kitchen/diner, rear sun room.

First floor

Landing two double bedrooms

Exterior

Access via a farm track to the side of the property leads to a driveway shared between you and the neighbours with parking area and rear gardens. The rear garden is screened with mature hedges and is laid mainly to lawn. The plan of the property boundaries is being amended upon sale and will be marked out at time of viewing.

Council Tax Band

D

Viewings

Viewings are being arranged strictly by appointment only. The next opportunity to view will be Monday 3rd March. Please contact the Norwich Office to book your appointment

Energy Efficiency Rating (EPC)

Current Rating F

Services

Interested parties are requested to make their own enquiries to the relevant authorities as to the availability of services.

Local Authority

North Norfolk District Council

Solicitors

Ashtons Legal (Norwich), Ref: Carolyn Starling, Tel: 01603 703239

Important Notice to Prospective Buyers:

We draw your attention to the Special Conditions of Sale within the Legal Pack, referring to other charges in addition to the purchase price which may become payable. Such costs may include Search Fees, reimbursement of Sellers costs and Legal Fees, and Transfer Fees amongst others.

Additional Fees

Buyer's Premium - £960 inc VAT payable on exchange of contracts.

Administration Charge - £1200 inc VAT payable on exchange of contracts.

Disbursements - Please see the legal pack for any disbursements listed that may become payable by the purchaser on completion.

View Larger Map

Disclaimer: The map preview provided above is for general guidance only and may not accurately reflect the exact location or surrounding buildings. Prospective buyers and interested parties are strongly advised to independently verify the precise location and surroundings before bidding.