Sold Prior | Lot 63

Land at Chestnut Tree Farm, Denham Road, Hoxne, Suffolk IP21 5DB

Sold Prior

  • Land
  • Tenure: Freehold

Call the team on 01473 558 888 for more information

Auction Date

Wed 26/03/2025

Auction Time

11:00

Auction Venue

Livestream Auction

A 2.49 acre (stms) building plot with Planning for a detached six bedroom property with garage located in the delightful village of Denham.

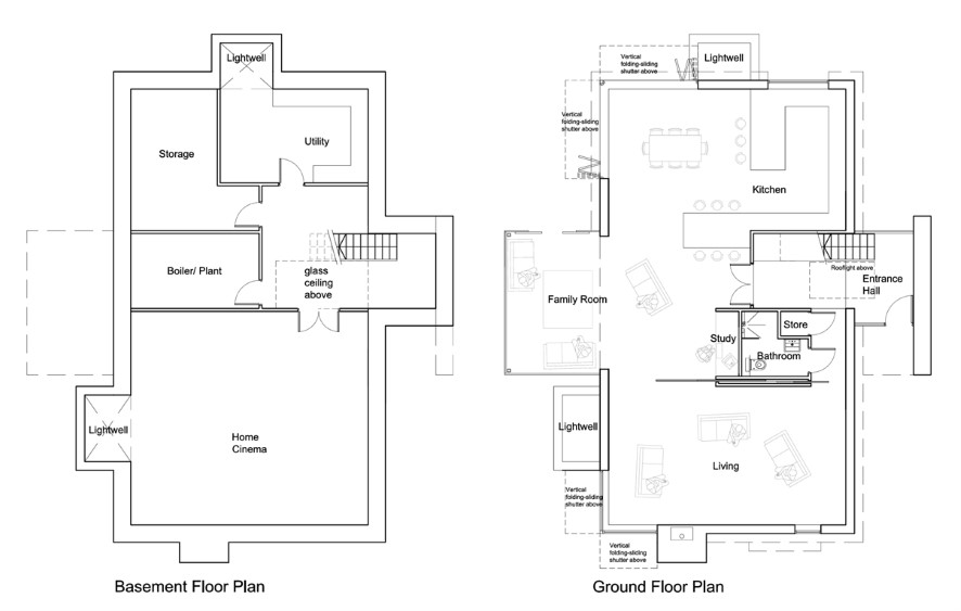
A generous building plot of 2.49acres (stms), with planning consent for development of a grand designs style six bedroom house (Reference DC/18/00297). The plans for the property feature a home cinema, a large family kitchen area, 6 bedrooms, 4 en-suites plus a detached garage with a studio/study. The plot is set in the village of Hoxne just a 10 minute drive from the town of Eye where you'll find local amenities, cafes and restaurants. This home is set in a stunning rural location and will really be one of a kind.

Tenure

Freehold

Services

Interested parties are requested to make their own enquiries to the relevant authorities as to the availability of services.

Local Authority

Mid Suffolk District Council

Solicitors

Ashtons Legal (Norwich), Ref: Simon Parker, Tel: 01603 703070

Important Notice to Prospective Buyers:

We draw your attention to the Special Conditions of Sale within the Legal Pack, referring to other charges in addition to the purchase price which may become payable. Such costs may include Search Fees, reimbursement of Sellers costs and Legal Fees, and Transfer Fees amongst others.

Additional Fees

Buyer's Premium - £1140 inc VAT payable on exchange of contracts.

Administration Charge - £1200 inc VAT payable on exchange of contracts.

Disbursements - Please see the legal pack for any disbursements listed that may become payable by the purchaser on completion.

View Larger Map

Disclaimer: The map preview provided above is for general guidance only and may not accurately reflect the exact location or surrounding buildings. Prospective buyers and interested parties are strongly advised to independently verify the precise location and surroundings before bidding.