For Sale By Auction | 11:00, 26 March 2025 | Lot 38

Orchard Cottage, 100 Station Road, Sawbridgeworth, Hertfordshire CM21 9JY

*Guide | £675,000 (plus fees)

  • Detached House
  • 5 Bedrooms
  • Tenure: Freehold

Call the team on 01223 483445 for more information

Auction Date

Wed 26/03/2025

Auction Time

11:00

Auction Venue

Livestream Auction

Grade II listed five bedroom detached period family home and annex, located within walking distance of the train station and town centre

This detached period family home has the added benefit of an annex. It is located on Station Road, under a five minute walk from Sawbridgeworth mainline station connecting to the village centre. Sawbridgeworth station is on a mainline to Cambridge and London which is accessible within fifty minutes. The property dates back to the 17th and 18th century with charming character features throughout. It benefits from being set well back from the road with parking for 4/5 cars. On the ground floor there is a large entrance hall, three reception rooms, kitchen, inner hallway, downstairs bathroom and stairs to a cellar below. There are three bedrooms on the first floor with the older part of the house having one bedroom with lower ceilings and two bedrooms on the second floor. The bedrooms on the second floor have lowered ceilings due to the age of the building. We have been advised that above the ceiling is a void to the roof, this could offer the potential to increase the head height, subject to the relevant consents being in place. Outside the property benefits from a large rear garden with a detached workshop with double doors that open to the front driveway and detached converted barn with accommodation comprising kitchenette, living area and separate shower room. This is currently being used as a home gym, but could lend itself to a variety of uses. Sawbridgeworth has a range of local amenities including, shops, schools, restaurants and public houses. There are also good transport links to Cambridge and London via the M11 and M25.

Tenure

Freehold

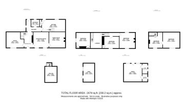
Ground Floor

Entrance hall, office/study, living room, dining room, inner hallway, kitchen, downstairs bathroom, stairs to cellar

First Floor

Large landing, three bedrooms.

Second Floor

Two bedrooms

Outside

The propery is set back from the road with driveway parking and decorative shrubbery. The rear garden is well stocked and mainly laid to lawn. Detached converted barn, currently used as a home gym and a detached workshop with double doors that open onto the front driveway.

Council Tax Band

E

Energy Efficiency Rating (EPC)

Current Rating F

Services

Interested parties are requested to make their own enquiries to the relevant authorities as to the availability of services.

Local Authority

East Hertfordshire District Council

Solicitors

Leathes Prior (The Close), Ref: Rachael Hughes, Tel: 01603 281004

Important Notice to Prospective Buyers:

We draw your attention to the Special Conditions of Sale within the Legal Pack, referring to other charges in addition to the purchase price which may become payable. Such costs may include Search Fees, reimbursement of Sellers costs and Legal Fees, and Transfer Fees amongst others.

Additional Fees

Buyer's Premium - £1200 inc VAT payable on exchange of contracts.

Administration Charge - £1200 inc VAT payable on exchange of contracts.

Disbursements - Please see the legal pack for any disbursements listed that may become payable by the purchaser on completion.

View Larger Map

Disclaimer: The map preview provided above is for general guidance only and may not accurately reflect the exact location or surrounding buildings. Prospective buyers and interested parties are strongly advised to independently verify the precise location and surroundings before bidding.