Sold Prior | Lot 65A

30, 30a and 30b Orwell Road, Felixstowe, Suffolk IP11 7DB

Sold Prior

  • Mixed Use
  • Tenure: Freehold

Call the team on 01473 558 888 for more information

Auction Date

Wed 26/03/2025

Auction Time

11:00

Auction Venue

Livestream Auction

A unique opportunity to acquire a fully licensed cafe/bar with 2 flats above

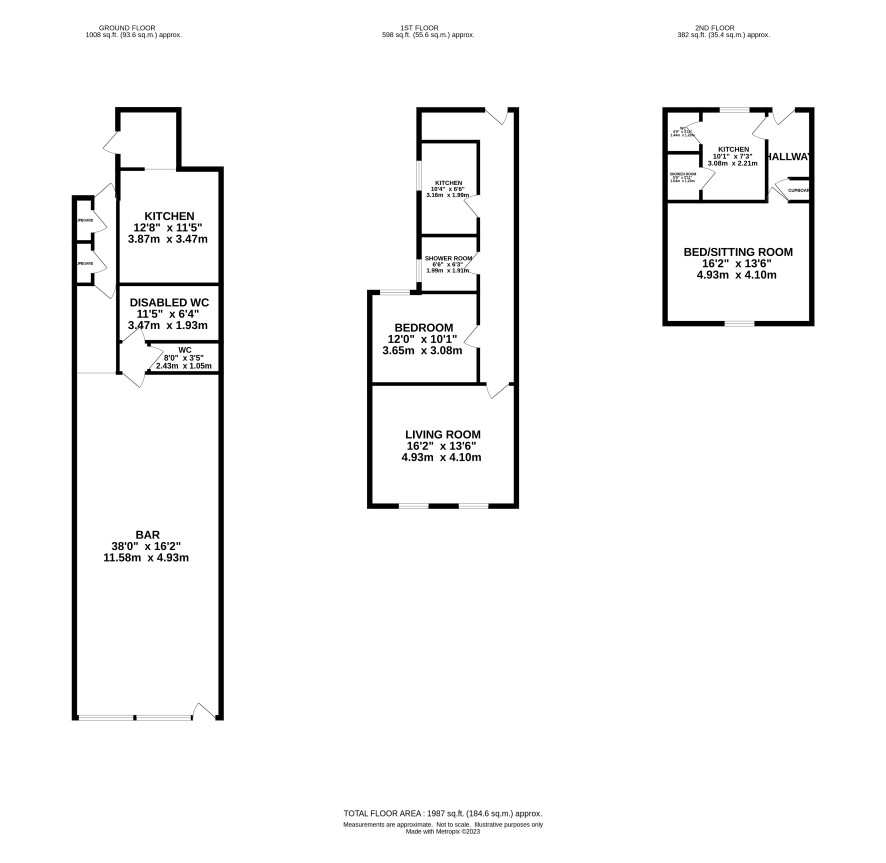
Situated in the heart of this Suffolk Coast town is this freehold licenced bar with two independently accessed flats above. The cafe/bar premises extends to approximately 1,000 sq/ft (93.6 sq/m) with space for around 40 covers, planning has also been approved for pavement tables and is just awaiting Highways approval. The first floor flat is newly refurbished and ready for immediate occupation, it has been let as an Airbnb on a part time basis over the last 18 months generating £20,000 of income which could easily be enhanced further or tenanted on a standard AST for a fixed term. The second floor studio flat is currently let on a periodic AST to a long-standing tenant at a current rent of £707 per calendar month (£8,484 per annum) increasing to £770 per calendar month (£9,240 per annum) in May 2025. It is considered the premises as a whole could generate a rental income of £40,000+ per annum giving well over 10% annual yield making this an unmissable investment opportunity.

Tenure

Freehold

Council Tax Bands

A, A

Energy Efficiency Rating (EPC)

Current Rating B, C, D

Services

Interested parties are requested to make their own enquiries to the relevant authorities as to the availability of services.

Local Authority

East Suffolk Council

Solicitors

Smith and Co Solicitors, Ref: Carrie-Ann Swinger, Tel: 01473 924880

Important Notice to Prospective Buyers:

We draw your attention to the Special Conditions of Sale within the Legal Pack, referring to other charges in addition to the purchase price which may become payable. Such costs may include Search Fees, reimbursement of Sellers costs and Legal Fees, and Transfer Fees amongst others.

Additional Fees

Buyer's Premium - £1140 inc VAT payable on exchange of contracts.

Administration Charge - £1200 inc VAT payable on exchange of contracts.

Disbursements - Please see the legal pack for any disbursements listed that may become payable by the purchaser on completion.

View Larger Map

Disclaimer: The map preview provided above is for general guidance only and may not accurately reflect the exact location or surrounding buildings. Prospective buyers and interested parties are strongly advised to independently verify the precise location and surroundings before bidding.