For Sale By Auction | 11:00, 08 May 2025 | Lot 59

Beech Cottage, Long Lane, Ingham Corner, Ingham, Norwich, Norfolk NR12 0TJ

Sold After

  • Detached House
  • 4 Bedrooms
  • Tenure: Freehold

Call the team on 01603 505 100 for more information

Auction Date

Thu 08/05/2025

Auction Time

11:00

Auction Venue

Livestream Auction

Modern detached 4 bedroomed house tucked away from the main road, adjacent to open farmland.

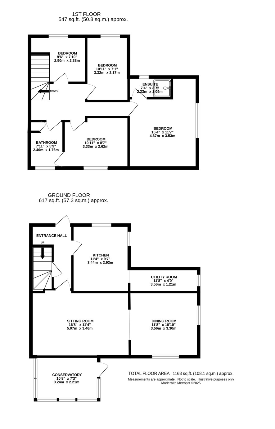
This modern four bedroom detached house situated in a delightful position, adjacent to open farmland within the sought after village of Ingham. The property would now benefit from updating to realise its full potential and offers an excellent opportunity for you to acquire a modern home in a pleasant non estate position. The accommodation includes an entrance hall, kitchen/breakfast room utility area, sitting with open plan dining room, conservatory, four bedrooms, master en-suite shower room and main bathroom. The property offers storage heating, uPVC sealed unit double glazed windows, parking to the front of the garage. Enclosed rear garden.

Tenure

Freehold

Ground floor

Entrance Hall, stairs to first floor, kitchen/breakfast room, utilities area, sitting room with opening into dining room and conservatory.

First Floor

Four bedrooms to include principal bedroom with en-suite and main bathroom.

Outside

Enclosed rear garden with access through garage with double door providing access for larger items. Paved front garden, Parking space to the front of the garage.

Agents Note

We would like to make prospective purchasers aware that there is a parking space which belongs to another properties title to the left of the property, adjacent to the slabbed area.

Council Tax Band

North Norfolk District Council - Band C

Viewings

Viewings are currently being arranged for Wednesday 7th May - Please call the Norwich office to book your slot.

Energy Efficiency Rating (EPC)

Current Rating D

Services

Interested parties are requested to make their own enquiries to the relevant authorities as to the availability of services.

Local Authority

North Norfolk District Council

Solicitors

Capron and Helliwell (Stalham), Ref: Neil Harries, Tel: 01692 581231

Important Notice to Prospective Buyers:

We draw your attention to the Special Conditions of Sale within the Legal Pack, referring to other charges in addition to the purchase price which may become payable. Such costs may include Search Fees, reimbursement of Sellers costs and Legal Fees, and Transfer Fees amongst others.

Additional Fees

Buyer's Premium - £960 inc VAT payable on exchange of contracts.

Administration Charge - £1200 inc VAT payable on exchange of contracts.

Disbursements - Please see the legal pack for any disbursements listed that may become payable by the purchaser on completion.

View Larger Map

Disclaimer: The map preview provided above is for general guidance only and may not accurately reflect the exact location or surrounding buildings. Prospective buyers and interested parties are strongly advised to independently verify the precise location and surroundings before bidding.