For Sale By Auction | 11:00, 08 May 2025 | Lot 6

28 Quayside, Norwich, Norfolk NR3 1RQ

Sold £272,500

  • Terraced House
  • 3 Bedrooms
  • Tenure: Freehold

Call the team on 01603 505 100 for more information

Auction Date

Thu 08/05/2025

Auction Time

11:00

Auction Venue

Livestream Auction

City centre three bedroom mid terrace cottage over looking the River Wensum

Located in the heart of the city in a conservation area, this three bedroom mid terrace house is one in a row of four requiring updating to realise its full potential. Previously let it is now to be sold with vacant possession. The property extends to around 73 sq/m, has gas central heating and small gardens to the front and rear. There is a picturesque outlook over the River Wensum to the front and a fine view of the Cathedral spire from the rear. Rare opportunity in a prime location.

Tenure

Freehold

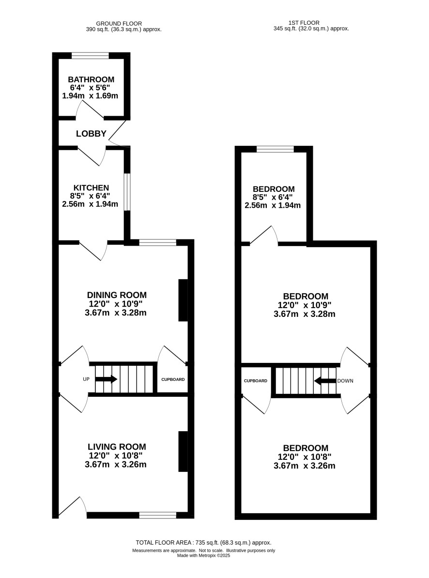
Ground Floor

Living room, dining room, kitchen, bathroom

First Floor

Three bedrooms (third through second)

Outside

Small front garden. Small courtyard style rear garden with wooden shed. The property fronts onto the Riverside Walk.

Council Tax Band

B

Viewing

Viewings are available at the property and the final one is on Tuesday 6 May. Please call the Norwich office to arrange an appointment.

Energy Efficiency Rating (EPC)

Current Rating D

Services

Interested parties are requested to make their own enquiries to the relevant authorities as to the availability of services.

Local Authority

Norwich City Council

Solicitors

nplaw, Ref: Donna Gotterson

Important Notice to Prospective Buyers:

We draw your attention to the Special Conditions of Sale within the Legal Pack, referring to other charges in addition to the purchase price which may become payable. Such costs may include Search Fees, reimbursement of Sellers costs and Legal Fees, and Transfer Fees amongst others.

Additional Fees

Buyer's Premium - £960 inc VAT payable on exchange of contracts.

Administration Charge - £1200 inc VAT payable on exchange of contracts.

Disbursements - Please see the legal pack for any disbursements listed that may become payable by the purchaser on completion.

View Larger Map

Disclaimer: The map preview provided above is for general guidance only and may not accurately reflect the exact location or surrounding buildings. Prospective buyers and interested parties are strongly advised to independently verify the precise location and surroundings before bidding.