Postponed | Lot 21

37 Essex Street, Norwich, Norfolk NR2 2BL

Postponed

  • Terraced House
  • 4 Bedrooms
  • Tenure: Freehold

Call the team on 01603 505 100 for more information

Auction Date

Thu 08/05/2025

Auction Time

11:00

Auction Venue

Livestream Auction

An impressive hall entrance terrace house in the highly sought after Golden Triangle

This highly desirable and spacious hall entrance terrace house has a wealth of attractive features and is set on a highly coveted road within sought after Golden Triangle area of Norwich. The property comes with a south facing rear garden which includes a self contained studio office. In addition to a cellar, the property has a useful converted loft attic space along with three bedrooms, a large family bathroom and ground floor living space that includes a through lounge diner and an extended kitchen breakfast room. Some minor updating is required but with sensitive improvement the property could provide high quality living just a short walk from Norwich City Centre.

Tenure

Freehold

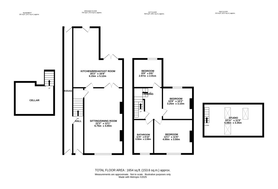
Ground Floor

Hall, lounge/dining room, kitchen/breakfast room, cellar, useful side passageway.

First Floor

Landing, three bedrooms, bathroom.

Second Floor

Studio loft room.

Outside

Small front garden with secure side passage way leading to enclosed and sunny rear garden, home office/studio with kitchen area and shower. Outside store and wc. Garden (non bisected)

Council Tax Band

C

Energy Efficiency Rating (EPC)

Current Rating D

Services

Interested parties are requested to make their own enquiries to the relevant authorities as to the availability of services.

Local Authority

Norwich City Council

Solicitors

Spire Solicitors LLP (Norwich), Ref: Tracy Guest, Tel: 01603 886221

Important Notice to Prospective Buyers:

We draw your attention to the Special Conditions of Sale within the Legal Pack, referring to other charges in addition to the purchase price which may become payable. Such costs may include Search Fees, reimbursement of Sellers costs and Legal Fees, and Transfer Fees amongst others.

Additional Fees

Buyer's Premium - £1200 inc VAT payable on exchange of contracts.

Administration Charge - £1200 inc VAT payable on exchange of contracts.

Disbursements - Please see the legal pack for any disbursements listed that may become payable by the purchaser on completion.

View Larger Map

Disclaimer: The map preview provided above is for general guidance only and may not accurately reflect the exact location or surrounding buildings. Prospective buyers and interested parties are strongly advised to independently verify the precise location and surroundings before bidding.