Withdrawn | Lot 110

Marmion House Hotel, 11, 17 & 19 Lynn Road, Wisbech, Norfolk PE13 3DD

Withdrawn

  • Hotel
  • 23 Bedrooms
  • Tenure: Freehold

Call the team on 01553 777 773 for more information

Auction Date

Thu 08/05/2025

Auction Time

11:00

Auction Venue

Livestream Auction

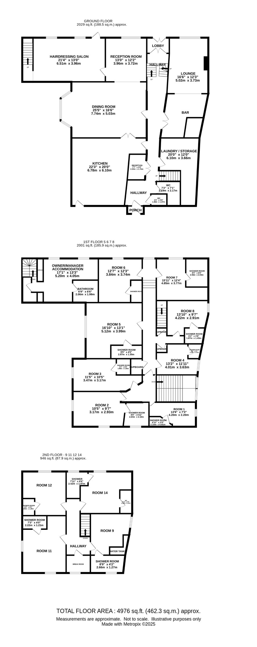
Family run hotel in excellent condition offering 23 bedrooms in the heart of Wisbech town centre

This property is being offered at auction as the current owner is retiring having successfully run it as a hotel for many decades. Over the years the hotel has grown into further accommodation occupying 17 and 19 Lynn Road as two separate houses offering 11 bedrooms all with en-suites and provide a high yield. The hotel is still operational with regular weekly bookings and has been maintained to a high standard with 12 generous sized rooms all tastefully decorated throughout with private en-suites. The buildings are well maintained and the electric, heating systems and fire alarms have been regularly serviced and are fully certificated. A driveway leads to the rear of the property which provides ample parking and a covered smoking shelter. Included within the hotel there is a hairdressing salon (vacant) and a self-contained duty manager's apartment. This is a great investment opportunity and viewings are strongly advised.

Tenure

Freehold

Planning

This iconic building is one of a few hotels remaining in the town and has scope for further expansion as there is lapsed planning for a further 6 rooms at the back of the main building which would offer further capacity if re-instated with the local council. It offers a great opportunity to become self catering units/HMO if planning was granted.

Hotel

12 Bedrooms with ensuite facilities, kitchen, laundry room, ladies and gents toilets, lounge with bar area, dining room and reception.

Salon

Formerly a hair salon but now vacant, equipped for trading if required

Duty Managers Apartment

Sitting room, bedroom area and bathroom

17 Lynn Road

Six generous rooms all with ensuite, laundry room

19 Lynn Road

Four generous apartments (2 x two bedroom) all with ensuite

Outside

Driveway leads to parking at the rear of the hotel which has a covered smoking shelter located in one corner.

Business Rates

According to the Valuation Office website the premises have a current rateable value of £18,250 with effect from 1 April 2023.

Energy Efficiency Rating (EPC)

Current Rating C,D,C

Services

Interested parties are requested to make their own enquiries to the relevant authorities as to the availability of services.

Local Authority

Fenland District Council

Solicitors

Metcalfe Copeman and Pettefar (Thetford), Ref: Kimberley Fox, Tel: 01842 756104

Important Notice to Prospective Buyers:

We draw your attention to the Special Conditions of Sale within the Legal Pack, referring to other charges in addition to the purchase price which may become payable. Such costs may include Search Fees, reimbursement of Sellers costs and Legal Fees, and Transfer Fees amongst others.

Additional Fees

Buyer's Premium - £960 inc VAT payable on exchange of contracts.

Administration Charge - £1200 inc VAT payable on exchange of contracts.

Disbursements - Please see the legal pack for any disbursements listed that may become payable by the purchaser on completion.

View Larger Map

Disclaimer: The map preview provided above is for general guidance only and may not accurately reflect the exact location or surrounding buildings. Prospective buyers and interested parties are strongly advised to independently verify the precise location and surroundings before bidding.