For Sale By Auction | 11:00, 08 May 2025 | Lot 93

5 Brian Close, Chelmsford, Essex CM2 9DZ

Sold £340,000

  • Semi-Detached House
  • 3 Bedrooms
  • Tenure: Freehold

Call the team on 01702 939933 for more information

Auction Date

Thu 08/05/2025

Auction Time

11:00

Auction Venue

Livestream Auction

Freehold Vacant House requiring refurbishment

A traditional 3 bed semi detached house in a popular residential area south of Chelmsford City Centre, The house does require refurbishment/upgrading.

Tenure

Freehold

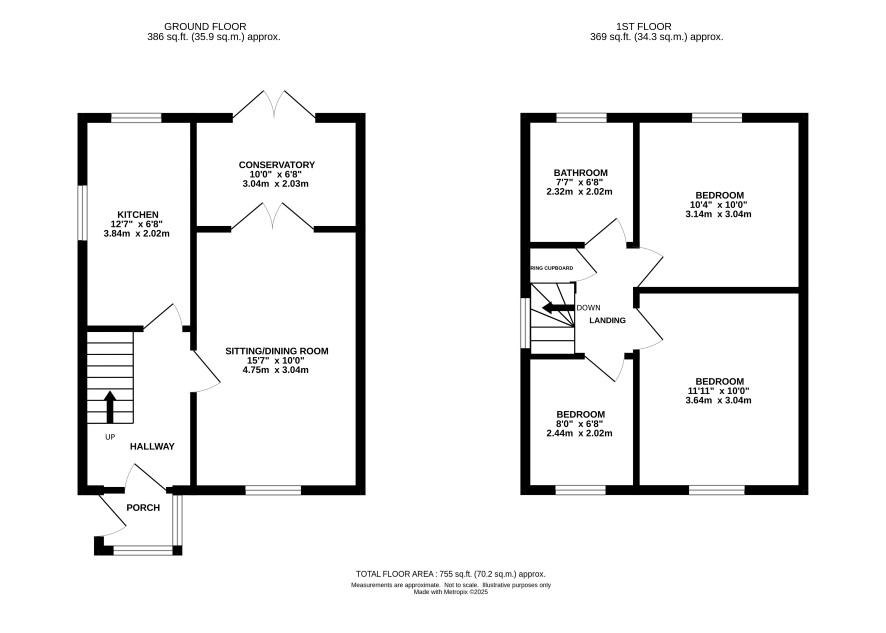
Ground Floor

Entrance Porch Door to Entrance Hall stairs to First Floor and doors to Through Lounge/diner Kitchen

First Floor

Landing with doors off to Bedroom 1 Bedroom 2 Bedroom 3 Bathroom Separate WC

Externally

Front Garden part laid to lawn Driveway with Carport leading Rear Garden, and Double Garage

Council Tax Band

D

Viewings

Upcoming viewing dates/times: Tuesday 6th May: 11:00am - 11:30am

Energy Efficiency Rating (EPC)

Current Rating E

Services

Interested parties are requested to make their own enquiries to the relevant authorities as to the availability of services.

Local Authority

Chelmsford City Council

Solicitors

Paul Robinson Solicitors LLP, Ref: Chloe Norris, Tel: 01702338338

Important Notice to Prospective Buyers:

We draw your attention to the Special Conditions of Sale within the Legal Pack, referring to other charges in addition to the purchase price which may become payable. Such costs may include Search Fees, reimbursement of Sellers costs and Legal Fees, and Transfer Fees amongst others.

Additional Fees

Buyer's Premium - £1800 inc VAT payable on exchange of contracts.

Administration Charge - £1200 inc VAT payable on exchange of contracts.

Disbursements - Please see the legal pack for any disbursements listed that may become payable by the purchaser on completion.

View Larger Map

Disclaimer: The map preview provided above is for general guidance only and may not accurately reflect the exact location or surrounding buildings. Prospective buyers and interested parties are strongly advised to independently verify the precise location and surroundings before bidding.