For Sale By Auction | 10:00, 18 June 2025 | Lot 26

18 Bates Green, Norwich, Norfolk NR5 8YN

Sold £150,000

  • Terraced House
  • 3 Bedrooms
  • Tenure: Freehold

Call the team on 01603 505 100 for more information

Auction Date

Wed 18/06/2025

Auction Time

10:00

Auction Venue

Livestream Auction

Three bedroom mid-terrace house is situated in a sought after location close to local amenities, the University of East Anglia and Norfolk and Norwich Hospital, with schooling for all ages.

This mid-terrace property offers versatile accommodation and lends itself well to use as a family home or, alternatively, as a buy-to-let investment, offering flexibility for a range of buyers and comprising: kitchen, lounge, dining room, conservatory, cloakroom/shower room, three bedrooms off landing with a family bathroom. To the front of the property is a small enclosed courtyard overlooking the communal green and to the rear fully enclosed garden and large timber shed. Located to the West of Norwich and within easy reach of the UEA and Norfolk & Norwich Hospital and local amenities.

Tenure

Freehold

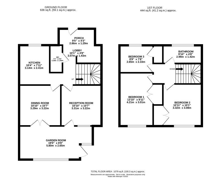
Ground Floor

Entrance Hall, shower room, kitchen, sitting room and dining room (Currently utilised as bedrooms), conservatory.

First Floor

Three bedrooms (Two doubles and a single) off landing and family bathroom

Outside

Front garden and fully enclosed rear garden with pedestrian access to the rear.

Council Tax Band

A

Viewings

Viewings are available by appointment only, with the final one scheduled for Monday 16 June. To book a viewing, please contact the Norwich office.

Energy Efficiency Rating (EPC)

Current Rating C

Services

Interested parties are requested to make their own enquiries to the relevant authorities as to the availability of services.

Local Authority

Norwich City Council

Solicitors

Spire Solicitors LLP (Norwich), Ref: Tracy Guest, Tel: 01603 886221

Important Notice to Prospective Buyers:

We draw your attention to the Special Conditions of Sale within the Legal Pack, referring to other charges in addition to the purchase price which may become payable. Such costs may include Search Fees, reimbursement of Sellers costs and Legal Fees, and Transfer Fees amongst others.

Additional Fees

Buyer's Premium - £600 inc VAT payable on exchange of contracts.

Administration Charge - £1200 inc VAT payable on exchange of contracts.

Disbursements - Please see the legal pack for any disbursements listed that may become payable by the purchaser on completion.

View Larger Map

Disclaimer: The map preview provided above is for general guidance only and may not accurately reflect the exact location or surrounding buildings. Prospective buyers and interested parties are strongly advised to independently verify the precise location and surroundings before bidding.