For Sale By Auction | 10:00, 18 June 2025 | Lot 1

41 Junction Road, Norwich, Norfolk NR3 2JQ

Sold £161,500

  • Terraced House
  • 3 Bedrooms
  • Tenure: Freehold

Call the team on 01603 505 100 for more information

Auction Date

Wed 18/06/2025

Auction Time

10:00

Auction Venue

Livestream Auction

Three bedroom mid terrace house requiring complete refurbishment

This three bedroom mid terrace house was built in 1901 and has been in the same family occupation since 1909. It has been unoccupied for 17 years and now requires a program of improvement and modernisation to realise its full potential. The property is located less than two miles north of the city centre close to a range of services and amenities. Ideal project for a builder / investor.

Tenure

Freehold

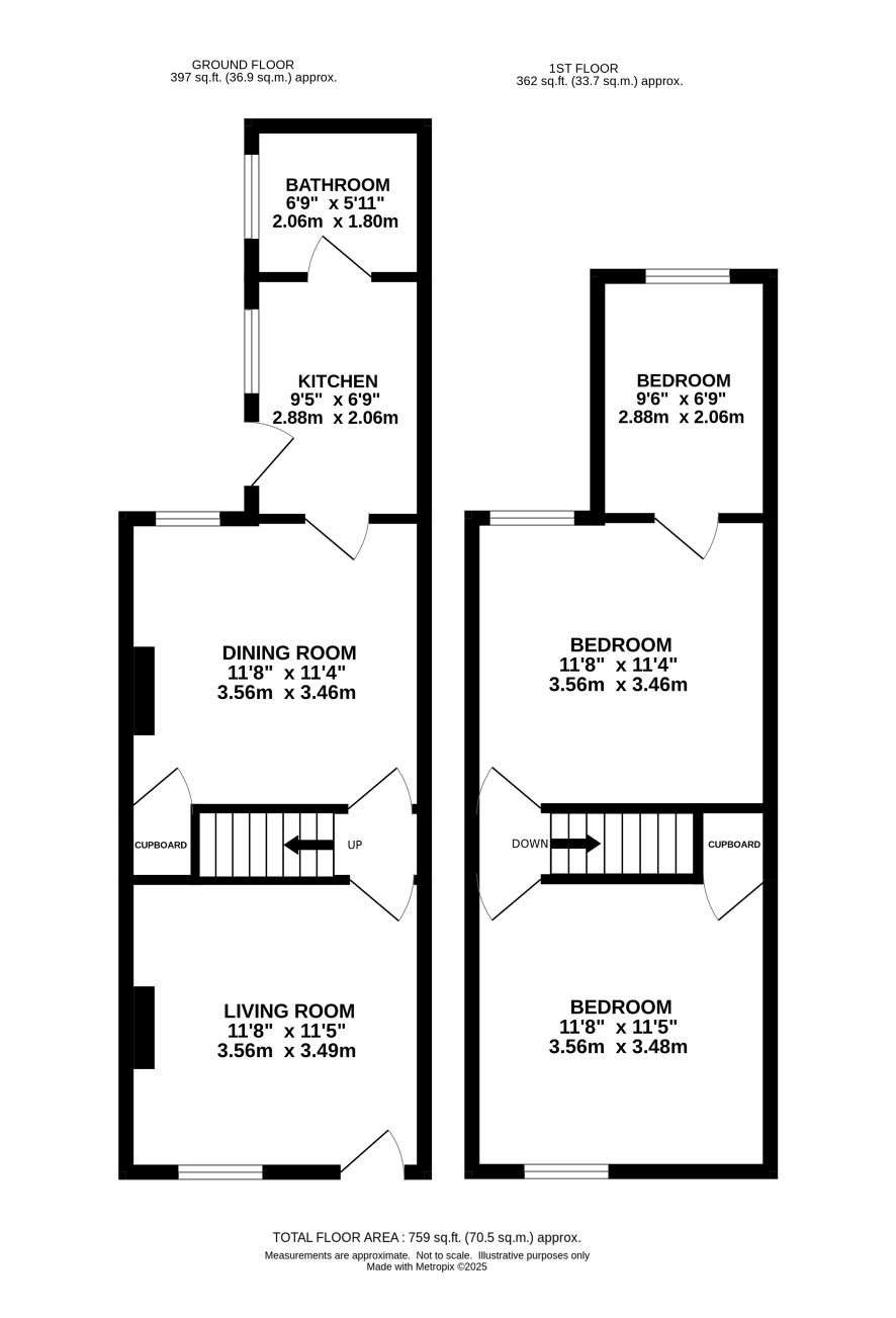
Ground floor

Sitting room, dining room, kitchen, shower room

First floor

Three bedrooms with third through second

Outside

Rear bisected garden in need of attention, small front garden

Council Tax Band

B

Viewings

Open viewings are arranged and the next are Monday 16th June. To book an appointment please call the Norwich office.

Energy Efficiency Rating (EPC)

Current Rating E

Services

Interested parties are requested to make their own enquiries to the relevant authorities as to the availability of services.

Local Authority

Norwich City Council

Solicitors

Leathes Prior (The Close), Ref: Rachael Hughes, Tel: 01603 281004

Important Notice to Prospective Buyers:

We draw your attention to the Special Conditions of Sale within the Legal Pack, referring to other charges in addition to the purchase price which may become payable. Such costs may include Search Fees, reimbursement of Sellers costs and Legal Fees, and Transfer Fees amongst others.

Additional Fees

Buyer's Premium - £600 inc VAT payable on exchange of contracts.

Administration Charge - £1200 inc VAT payable on exchange of contracts.

Disbursements - Please see the legal pack for any disbursements listed that may become payable by the purchaser on completion.

View Larger Map

Disclaimer: The map preview provided above is for general guidance only and may not accurately reflect the exact location or surrounding buildings. Prospective buyers and interested parties are strongly advised to independently verify the precise location and surroundings before bidding.