For Sale By Auction | 10:00, 18 June 2025 | Lot 9

172 Plumstead Road, Norwich, Norfolk NR1 4JY

Sold £251,000

  • Detached House
  • 3 Bedrooms
  • Tenure: Freehold

Call the team on 01603 505 100 for more information

Auction Date

Wed 18/06/2025

Auction Time

10:00

Auction Venue

Livestream Auction

A detached three bedroom house requiring updating

This detached house is now ready to be updated and redecorated then will offer family sized accommodation in a highly convenient location. The property is double glazed has gas central heating and is set in generous gardens with ample off road parking and garage. The property has a through lounge/diner, generous kitchen and conservatory with a useful work room/study to the side. On the first floor there are three bedrooms and a bathroom. The property is close to shops, on a regular bus route and is approximately a mile from the city centre.

Tenure

Freehold

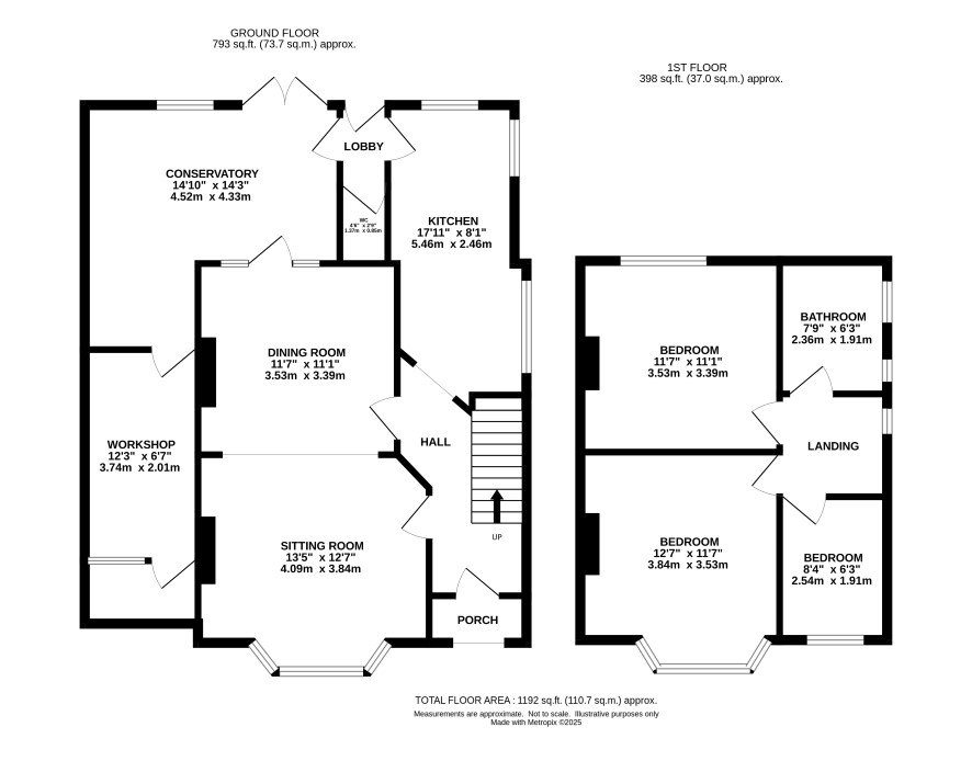
Ground Floor

Hall, lounge/diner, kitchen, conservatory, study/workroom

First Floor

Landing, three bedrooms, bathroom

Outside

Well proportioned gardens with ample off road parking and garage

Council Tax Band

C

Viewings

Viewings are available by appointment only, with the next scheduled for Thursday 12th June. To book a viewing, please contact the Norwich office.

Energy Efficiency Rating (EPC)

Current Rating E

Services

Interested parties are requested to make their own enquiries to the relevant authorities as to the availability of services.

Local Authority

Norwich City Council

Solicitors

Spire Solicitors LLP (Wymondham), Ref: Laura Pigney, Tel: 01953 713684

Important Notice to Prospective Buyers:

We draw your attention to the Special Conditions of Sale within the Legal Pack, referring to other charges in addition to the purchase price which may become payable. Such costs may include Search Fees, reimbursement of Sellers costs and Legal Fees, and Transfer Fees amongst others.

Additional Fees

Buyer's Premium - £600 inc VAT payable on exchange of contracts.

Administration Charge - £1200 inc VAT payable on exchange of contracts.

Disbursements - Please see the legal pack for any disbursements listed that may become payable by the purchaser on completion.

View Larger Map

Disclaimer: The map preview provided above is for general guidance only and may not accurately reflect the exact location or surrounding buildings. Prospective buyers and interested parties are strongly advised to independently verify the precise location and surroundings before bidding.