Sold Prior | Lot 88

Land at Milch Hill, Willows Green, Great Leighs, Chelmsford, Essex CM3 1QE

Sold Prior

  • Farm Land
  • Tenure: Freehold

Call the team on 01702 939933 for more information

Auction Date

Wed 18/06/2025

Auction Time

10:00

Auction Venue

Livestream Auction

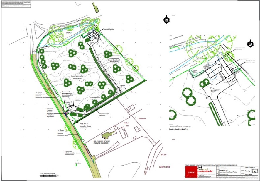
A rare opportunity to buy a Freehold parcel of land extending to approximately 4.14 Acres (1.675 Ha.) in Willows Green, Great Leighs.

The land sits at the junction of Milch Hill and Main Road in Willows Green and enjoys extensive frontages to both road and there is an established gated entrance from Main Road. The broadly level rectangular plot has ponds and some trees to the northern section (Milch Hill) and hedges /post and rail fencing to most boundaries. The land is suitable for grazing and other similar/alternative uses (subject to any necessary consents). This rural area is some 3 miles from Braintree station and 8 miles from the city of Chelmsford, whilst London Stansted Airport is 11 miles distant. Chelmsford City Racecourse is only one mile from the property.

Tenure

Freehold

Site Area/dimensions (Approx)

(Not measured and according to digital mapping software) Overall site Area 4.138 Acres. 1.675 Hectares Main road Frontage Approx. 140M Milch Hill Frontage Approx. 80M

Services

Interested parties are requested to make their own enquiries to the relevant authorities as to the availability of services.

Local Authority

Braintree District Council

Solicitors

Foskett Marr Gadsby and Head, Ref: Tara O’Donnell, Tel: 020 8502 3991 / 01992 563 673

Offered in association with

Allcoat

Important Notice to Prospective Buyers:

We draw your attention to the Special Conditions of Sale within the Legal Pack, referring to other charges in addition to the purchase price which may become payable. Such costs may include Search Fees, reimbursement of Sellers costs and Legal Fees, and Transfer Fees amongst others.

Additional Fees

Buyer's Premium - £1200 inc VAT payable on exchange of contracts.

Administration Charge - £1200 inc VAT payable on exchange of contracts.

Disbursements - Please see the legal pack for any disbursements listed that may become payable by the purchaser on completion.

View Larger Map

Disclaimer: The map preview provided above is for general guidance only and may not accurately reflect the exact location or surrounding buildings. Prospective buyers and interested parties are strongly advised to independently verify the precise location and surroundings before bidding.