For Sale By Auction | 10:00, 30 July 2025 | Lot 80

48 Truemans Road, Hitchin, Hertfordshire SG5 2TD

*Guide | £395,000 (plus fees)

  • Semi-Detached House
  • 3 Bedrooms
  • Tenure: Freehold

Call the team on 01223 483445 for more information

Auction Date

Wed 30/07/2025

Auction Time

10:00

Auction Venue

Livestream Auction

Ideal family home for chain free motivated buyers

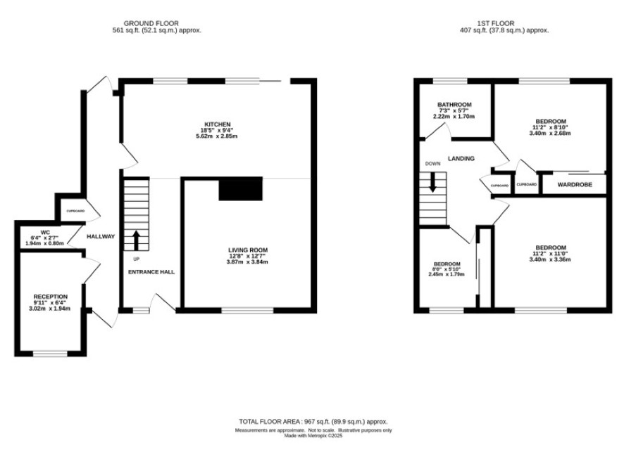
Truemans Road in Hitchin is a great area for families with catchment for local schooling, it is also under a 25 minute brisk walk from the train station. The property has been refurbished throughout to include a newly fitted kitchen and bathroom. The property has a family friendly layout with a sitting room and feature fireplace opening onto the newly fitted kitchen/dining room with double doors leading to a large garden, approximately 80ft in length that includes a recently laid patio seating area. With new flooring laid throughout, upstairs there are two double bedrooms, a single bedroom and a modern family bathroom. To the side of the property are some outbuildings, perfect for storage with electricity and are currently used as a utility space, and outside W/C. To the front there is a large driveway for multiple cars.

Tenure

Freehold

Downstairs Accomodation

Entrance hallway, sitting room, kitchen/dining room.

Upstairs Accomodation

Two double bedrooms, single bedroom and a family bathroom.

Outside

A large rear garden and outbuildings to the side. A driveway to the front for multiple cars.

Energy Efficiency Rating (EPC)

Current Rating D

Services

Interested parties are requested to make their own enquiries to the relevant authorities as to the availability of services.

Local Authority

North Hertfordshire District Council

Solicitors

Southern Stewart & Walker, Ref: Claire Stanton, Tel: 0191 4270770

Important Notice to Prospective Buyers:

We draw your attention to the Special Conditions of Sale within the Legal Pack, referring to other charges in addition to the purchase price which may become payable. Such costs may include Search Fees, reimbursement of Sellers costs and Legal Fees, and Transfer Fees amongst others.

Additional Fees

Administration Charge - 0.3% inc VAT of the purchase price, subject to a minimum of £1,200 (£1,000+ VAT), payable on exchange of contracts.

Disbursements - Please see the legal pack for any disbursements listed that may become payable by the purchaser on completion.

View Larger Map

Disclaimer: The map preview provided above is for general guidance only and may not accurately reflect the exact location or surrounding buildings. Prospective buyers and interested parties are strongly advised to independently verify the precise location and surroundings before bidding.