For Sale By Auction | 10:00, 30 July 2025 | Lot 134

30 Tonning Street, Lowestoft, Suffolk NR32 2AN

Sold £90,000

  • Terraced House
  • 2 Bedrooms
  • Tenure: Freehold

Call the team on 01603 505 100 for more information

Auction Date

Wed 30/07/2025

Auction Time

10:00

Auction Venue

Livestream Auction

Well presented vacant two bedroom terrace house

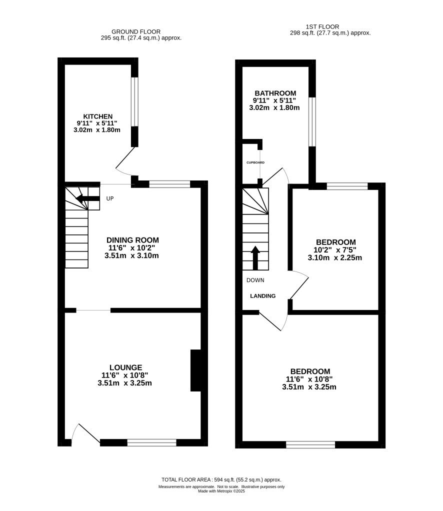
This two bedroom mid terrace house extends to around 56 sq/m. It was previously let, and is now to be sold with vacant possession. The property is in good decorative order benefits from double glazing and gas heating to radiators. It is close to the town centre near a comprehensive range of services and amenities. Ideal first time purchase for owner occupation or investment.

Tenure

Freehold

Ground Floor

Lounge, dining room, kitchen

First Floor

Two bedrooms, bathroom

Outside

Good size garden to the rear with patio area, lawn, gated rear access

Council Tax Band

A

Viewings

Open viewings are arranged and the next are on Friday 25 July. To book an appointment please call the Norwich office.

Energy Efficiency Rating (EPC)

Current Rating D

Services

Interested parties are requested to make their own enquiries to the relevant authorities as to the availability of services.

Local Authority

East Suffolk Council

Solicitors

Attwells Solicitors (Ipswich), 35-37 Princes Street, Ref: Sophie Ball, Tel: 01473 229228

Important Notice to Prospective Buyers:

We draw your attention to the Special Conditions of Sale within the Legal Pack, referring to other charges in addition to the purchase price which may become payable. Such costs may include Search Fees, reimbursement of Sellers costs and Legal Fees, and Transfer Fees amongst others.

Additional Fees

Buyer's Premium - £960 inc VAT payable on exchange of contracts.

Administration Charge - £1200 inc VAT payable on exchange of contracts.

Disbursements - Please see the legal pack for any disbursements listed that may become payable by the purchaser on completion.

View Larger Map

Disclaimer: The map preview provided above is for general guidance only and may not accurately reflect the exact location or surrounding buildings. Prospective buyers and interested parties are strongly advised to independently verify the precise location and surroundings before bidding.