For Sale By Auction | 10:00, 30 July 2025 | Lot 4

42 Heath Road, Norwich, Norfolk NR3 1JW

Sold £162,000

  • Terraced House
  • 2 Bedrooms
  • Tenure: Freehold

Call the team on 01603 505 100 for more information

Auction Date

Wed 30/07/2025

Auction Time

10:00

Auction Venue

Livestream Auction

A two bedroom terrace house requiring modernisation and some remedial repair

This vacant north city terrace house has been tenanted for many years but is now vacant and in need of full modernisation and remedial repair. The property is excellently located in a popular location within walking distance of the city centre and ideal for the rental market. The property has gas central heating and benefits from an enclosed rear garden not bisected by rights of way.

Tenure

Freehold

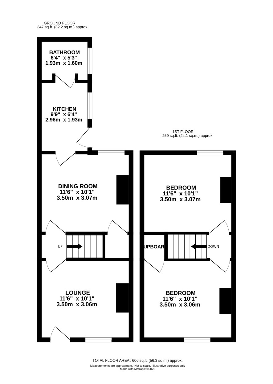
Ground Floor

Lounge, dining room, kitchen, bathroom

First Floor

Two double bedrooms

Outside

Small front garden, sheltered rear garden not bisected by rights of way

Council Tax Band

A

Viewings

Open viewings are arranged and the next are on Thursday 24 July. To book an appointment please call the Norwich office.

Energy Efficiency Rating (EPC)

Current Rating E

Services

Interested parties are requested to make their own enquiries to the relevant authorities as to the availability of services.

Local Authority

Norwich City Council

Solicitors

Leathes Prior (The Close), Ref: Joanna Allen, Tel: 01603 281009

Important Notice to Prospective Buyers:

We draw your attention to the Special Conditions of Sale within the Legal Pack, referring to other charges in addition to the purchase price which may become payable. Such costs may include Search Fees, reimbursement of Sellers costs and Legal Fees, and Transfer Fees amongst others.

Additional Fees

Buyer's Premium - £600 inc VAT payable on exchange of contracts.

Administration Charge - £1200 inc VAT payable on exchange of contracts.

Disbursements - Please see the legal pack for any disbursements listed that may become payable by the purchaser on completion.

View Larger Map

Disclaimer: The map preview provided above is for general guidance only and may not accurately reflect the exact location or surrounding buildings. Prospective buyers and interested parties are strongly advised to independently verify the precise location and surroundings before bidding.