Postponed | Lot 125

Hannaforepoint, Tunbeck Road, Wortwell, Harleston, Norfolk IP20 0HP

Postponed

  • Detached Bungalow
  • 4 Bedrooms
  • Tenure: Freehold

Call the team on 01603 505 100 for more information

Auction Date

Wed 30/07/2025

Auction Time

10:00

Auction Venue

Livestream Auction

Elevated individual four bedroom detached bungalow in need of modernising offering great potential for adaption.

Rare opportunity to acquire this individual bungalow situated on the edge of the village of Wortwell. The bungalow is elevated at the front with garage and workshop beneath and steps lead to the front entrance and rear garden. The accommodation is generous and offers great potential to be adapted (stpp). In need of modernising the bungalow currently offers four specious bedrooms, generous 'L shaped' lounge diner, bathroom and modern kitchen fitted in recent years. A staircase leads to the attic which has been partially converted and with some further work could offer further accommodation or great hobby space. The South East garden is in need of some maintenance and backs the A143 to Harleston a couple of miles away. This is a property that truly needs to be viewed to be appreciated and would suit an owner occupier or someone looking for a project.

Tenure

Freehold

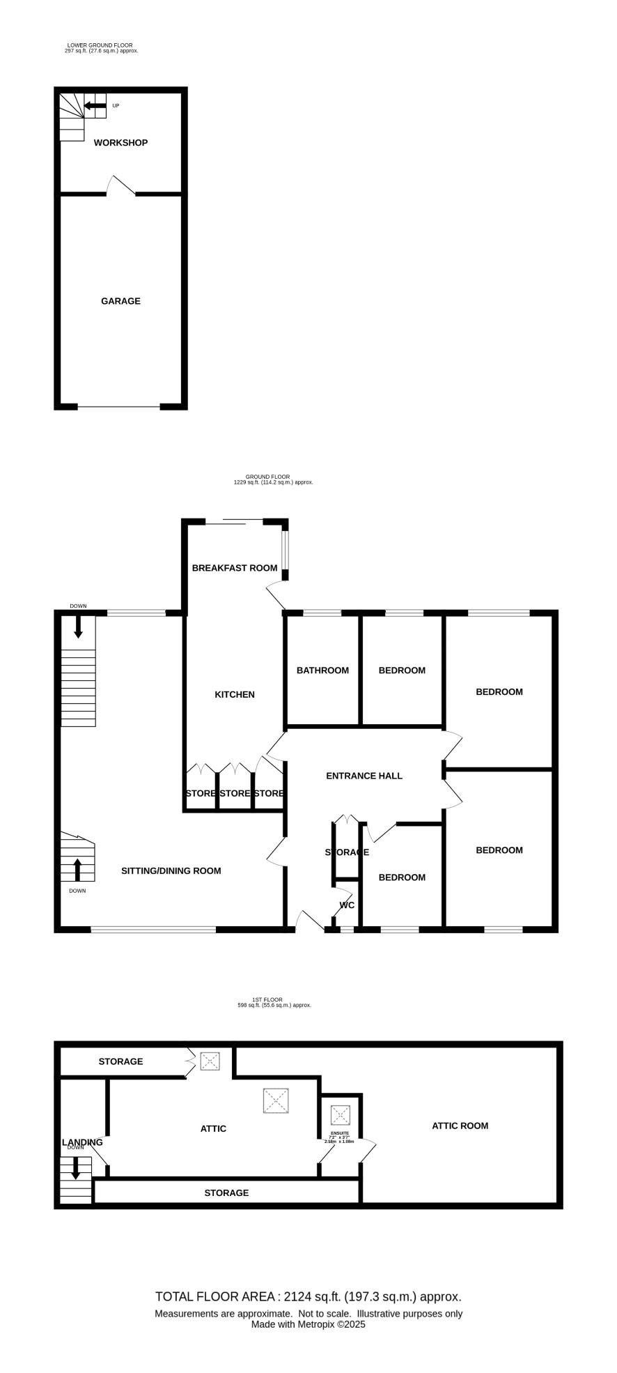
Ground Floor

Entrance hall, 'L shaped' lounge diner with stairs to attic space, kitchen/breakfast room, four bedrooms and family bathroom

Attic Space

This large room has been used for storage and with planning obtained could offer a very useful space (master bedroom with ensuite or large amenity room/office/music room.)

Exterior

Sweeping tarmac drive providing ample parking leads to a single garage with workshop beyond. Steps leads to the elevated front entrance. Steps to the side of the property provide access to the generous South East facing garden which is laid to lawn and offers a shed and summerhouse along with a decking and paved patio area.

Council Tax Band

E

Viewings

Viewings are available by strictly by appointment only on the following days: Tuesday 22 July Thursday 24 July To book your viewing time please contact the Norwich Office.

Energy Efficiency Rating (EPC)

Current Rating F

Services

Interested parties are requested to make their own enquiries to the relevant authorities as to the availability of services.

Local Authority

South Norfolk Council

Solicitors

Spire Solicitors LLP (Norwich), Ref: Tracy Guest, Tel: 01603 886221

Important Notice to Prospective Buyers:

We draw your attention to the Special Conditions of Sale within the Legal Pack, referring to other charges in addition to the purchase price which may become payable. Such costs may include Search Fees, reimbursement of Sellers costs and Legal Fees, and Transfer Fees amongst others.

Additional Fees

Buyer's Premium - £960 inc VAT payable on exchange of contracts.

Administration Charge - £1200 inc VAT payable on exchange of contracts.

Disbursements - Please see the legal pack for any disbursements listed that may become payable by the purchaser on completion.

View Larger Map

Disclaimer: The map preview provided above is for general guidance only and may not accurately reflect the exact location or surrounding buildings. Prospective buyers and interested parties are strongly advised to independently verify the precise location and surroundings before bidding.