Withdrawn | Lot 95a

1 Drury Road, Colchester, Essex CO2 7UZ

Withdrawn

  • Semi-Detached House
  • 4 Bedrooms
  • Tenure: Freehold

Call the team on 01473 558 888 for more information

Auction Date

Wed 30/07/2025

Auction Time

10:00

Auction Venue

Livestream Auction

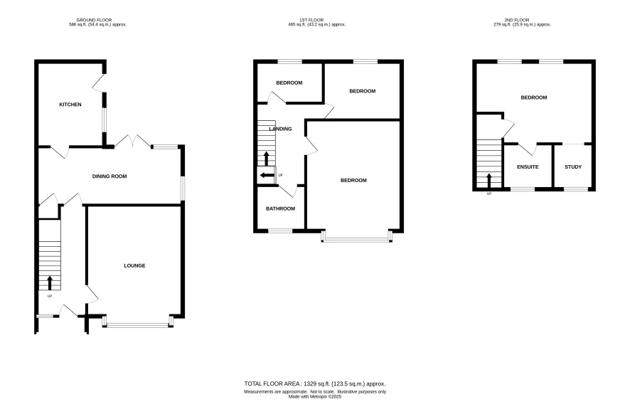
Four bedroom semi detached property with valid HMO license until 2028 for five bedrooms.

Nestled in a sought-after area of Colchester and conveniently close to local amenities, this spacious four-bedroom semi-detached home offers potential for both a family or an investor looking to continue it's use as an HMO. The property offers a comfortable lounge, a separate dining room with double doors leading out to the garden, and a well-appointed kitchen with additional garden access. On the first floor, you’ll find three bedrooms and a family bathroom. The top floor is dedicated to a spacious master bedroom complete with an en-suite and a cosy study area—ideal for working from home or quiet reading space. The property currently has a valid HMO license until 2028 for five bedrooms. Although there isn't any parking with the property currently, there is the opportunity to explore off road parking to the rear.

Tenure

Freehold

Lounge

5.36m x 3.58m (17' 7" x 11' 9")

Kitchen/dining area

7.21m x 4.78m (23' 8" x 15' 8")

Bedroom two

3.56m x 3.18m (11' 8" x 10' 5")

Bedroom three

3.53m x 3.28m (11' 7" x 10' 9")

Bedroom four

2.16m x 1.9m (7' 1" x 6' 3")

Bathroom

2m x 1.96m (6' 7" x 6' 5")

Master Bedroom

4.65m x 2.87m (15' 3" x 9' 5")

En-suite

2.44m x 1.68m (8' 0" x 5' 6")

Energy Efficiency Rating (EPC)

Current Rating E

Services

Interested parties are requested to make their own enquiries to the relevant authorities as to the availability of services.

Local Authority

Colchester Borough Council

Solicitors

Ellisons Solicitors (Colchester), Ref: Shah Bakar, Tel: (0)1245 968907

Important Notice to Prospective Buyers:

We draw your attention to the Special Conditions of Sale within the Legal Pack, referring to other charges in addition to the purchase price which may become payable. Such costs may include Search Fees, reimbursement of Sellers costs and Legal Fees, and Transfer Fees amongst others.

Additional Fees

Buyer's Premium - £1200 inc VAT payable on exchange of contracts.

Administration Charge - £1200 inc VAT payable on exchange of contracts.

Disbursements - Please see the legal pack for any disbursements listed that may become payable by the purchaser on completion.

View Larger Map

Disclaimer: The map preview provided above is for general guidance only and may not accurately reflect the exact location or surrounding buildings. Prospective buyers and interested parties are strongly advised to independently verify the precise location and surroundings before bidding.