For Sale By Auction | 10:00, 30 July 2025 | Lot 112a

Willowside, Brimbelow Road, Hoveton, Norwich, Norfolk NR12 8UJ

Sold £373,000

  • Detached Bungalow
  • 2 Bedrooms
  • Tenure: Freehold

Call the team on 01603 505 100 for more information

Auction Date

Wed 30/07/2025

Auction Time

10:00

Auction Venue

Livestream Auction

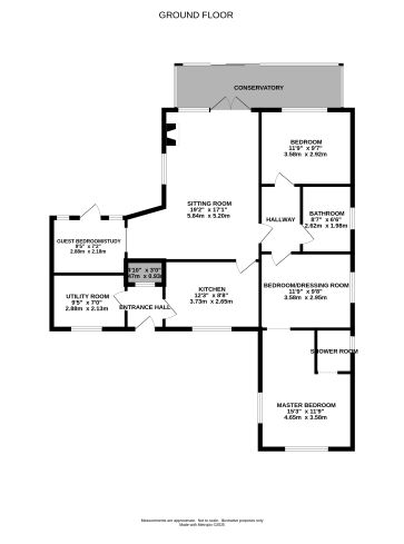
Detached non standard waterside bungalow tastefully renovated with double mooring dock in the heart of Hoveton on the edge of Wroxham.

Built in the 1970's this detached non standard bungalow has recently been refurbished to a high standard and offers splendid views over the River Bure from the garden room. Life in Hoveton and Wroxham is an idyllic blend of rural charm and waterside living. Known as the "Capital of the Broads," this picturesque region offers a unique lifestyle centred around the waterways. The bungalow offers spacious adaptable accommodation throughout and has been tastefully decorated. This prime riverside location boasts an impressive double mooring dock measuring approximately 44' x 32'6", complete with shore power and water, providing effortless access to the River Bure and the wider Broads network.

Tenure

Freehold

Bungalow

Utility Room, kitchen, 'L shaped' living room with dining area and study space, garden room, two double bedrooms both with ensuite and jack and jill dressing room accessible from both bedrooms.

Outside

Five bar gate opens onto a gravel drive providing ample off-road parking and offers a large timber workshop with power, and additional storage options. Outside, the waterside setting truly takes centre stage. The rear garden has been thoughtfully designed for low maintenance, featuring Astroturf, slate-covered flower beds, and two raised southwest-facing sun decks—perfect for soaking up the stunning views. A secure fence with double gates provides safety for children or pets while allowing easy access to the substantial private mooring dock

Council Tax Band

C

Viewings

Viewings are available by appointment on the following days: Tuesday 29th July To book your viewing time contact the Norwich Office.

Energy Efficiency Rating (EPC)

Current Rating F

Services

Interested parties are requested to make their own enquiries to the relevant authorities as to the availability of services.

Local Authority

North Norfolk District Council

Solicitors

Capstick Dale, Ref: Lauren Beasley, Tel: 01708 722466

Offered in association with

Minors and Brady (Wroxham)

Important Notice to Prospective Buyers:

We draw your attention to the Special Conditions of Sale within the Legal Pack, referring to other charges in addition to the purchase price which may become payable. Such costs may include Search Fees, reimbursement of Sellers costs and Legal Fees, and Transfer Fees amongst others.

Additional Fees

Buyer's Premium - £1200 inc VAT payable on exchange of contracts.

Administration Charge - £1200 inc VAT payable on exchange of contracts.

Disbursements - Please see the legal pack for any disbursements listed that may become payable by the purchaser on completion.

View Larger Map

Disclaimer: The map preview provided above is for general guidance only and may not accurately reflect the exact location or surrounding buildings. Prospective buyers and interested parties are strongly advised to independently verify the precise location and surroundings before bidding.