Sold Prior | Lot 94

End Cottage, St. Marks Road, Holbeach St. Marks, Holbeach, Spalding, Lincolnshire PE12 8DZ

Sold Prior

  • Detached House
  • 4 Bedrooms
  • Tenure: Freehold

Call the team on 01733 889833 for more information

Auction Date

Wed 10/09/2025

Auction Time

10:00

Auction Venue

Livestream Auction

Four bedroom detached cottage

A detached four bedroom house with a delightful garden offered with vacant possession. This detached house offers two reception rooms kitchen, utility, conservatory, with four bedrooms and a bathroom on the first floor. The house had a programme of renovation in 1998. A new oil fired Condensing Combination Boiler was installed in November 2024. Outside you can find a delightful well stocked garden. Holbeach St Marks is located north of Holbeach where you can find local facilities. 

Tenure

Freehold

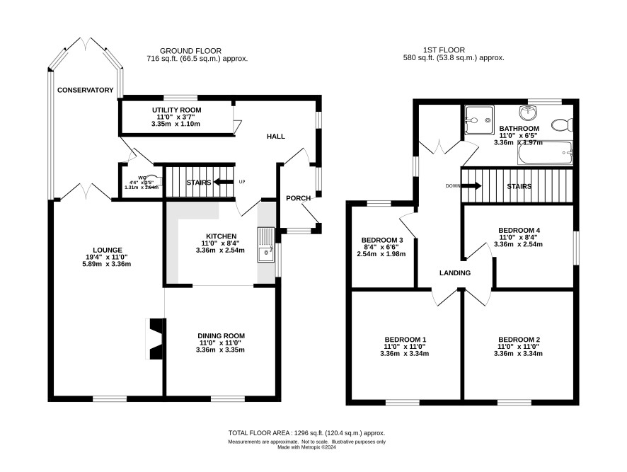
Ground Floor

Porch, Hall, Lounge, Dining Room, Kitchen, Utility and a Conservatory

First Floor

Landing, Four Bedrooms and a Bathroom

Outside

Parking to side. Garden at rear with a timber workshop

Council Tax Band

A

Energy Efficiency Rating (EPC)

Current Rating E

Services

Interested parties are requested to make their own enquiries to the relevant authorities as to the availability of services.

Local Authority

South Holland District Council

Solicitors

Southern Stewart & Walker, Ref: Claire Stanton, Tel: 0191 4270770

Important Notice to Prospective Buyers:

We draw your attention to the Special Conditions of Sale within the Legal Pack, referring to other charges in addition to the purchase price which may become payable. Such costs may include Search Fees, reimbursement of Sellers costs and Legal Fees, and Transfer Fees amongst others.

Additional Fees

Buyer's Premium - £1200 inc VAT payable on exchange of contracts.

Administration Charge - £1200 inc VAT payable on exchange of contracts.

Disbursements - Please see the legal pack for any disbursements listed that may become payable by the purchaser on completion.

View Larger Map

Disclaimer: The map preview provided above is for general guidance only and may not accurately reflect the exact location or surrounding buildings. Prospective buyers and interested parties are strongly advised to independently verify the precise location and surroundings before bidding.