Withdrawn | Lot 98

35A Middletons Road, Yaxley, Cambridgeshire PE7 3LR

Withdrawn

  • Semi-Detached House
  • 3 Bedrooms
  • Tenure: Freehold

Call the team on 01733 889833 for more information

Auction Date

Wed 10/09/2025

Auction Time

10:00

Auction Venue

Livestream Auction

A Grade II listed house dating back to 1610 with generous accommodation set on a plot of 0.19 of an acre

This Grade II listed house was formerly a reed cutters house and is believed to date back to 1610. The property has period features and historic charm. The property benefits from generous accommodation including two reception rooms, kitchen, breakfast room, conservatory and a ground floor bathroom. Three bedrooms, one with ensuite can be found on the first floor. Outside the property benefits of a garden to front, a large parking area, garage/workshop and terrace to the rear. The property has a well maintained asbestos slate roof. Yaxley is located south of Peterborough and offers village facilities with a main line rail link at Peterborough providing access into London Kings Cross.

Tenure

Freehold

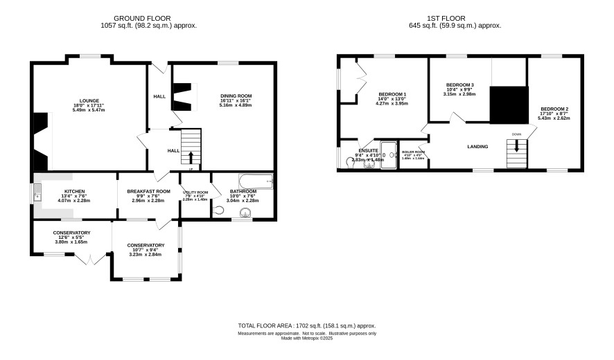
Ground Floor

Hall, Lounge, dining room, breakfast room, kitchen, utility room, bathroom, conservatory.

First floor

Landing area, three bedrooms one with en-suite.

Outside

Garden to front. Drive to side with access to a large parking area, garage/workshop and further terraced area.

Council Tax Band

D

Energy Efficiency Rating (EPC)

Current Rating D

Services

Interested parties are requested to make their own enquiries to the relevant authorities as to the availability of services.

Local Authority

Huntingdonshire District Council

Solicitors

Buckles, Ref: Michaela Paola

Important Notice to Prospective Buyers:

We draw your attention to the Special Conditions of Sale within the Legal Pack, referring to other charges in addition to the purchase price which may become payable. Such costs may include Search Fees, reimbursement of Sellers costs and Legal Fees, and Transfer Fees amongst others.

Additional Fees

Buyer's Premium - £1200 inc VAT payable on exchange of contracts.

Administration Charge - £1200 inc VAT payable on exchange of contracts.

Disbursements - Please see the legal pack for any disbursements listed that may become payable by the purchaser on completion.

View Larger Map

Disclaimer: The map preview provided above is for general guidance only and may not accurately reflect the exact location or surrounding buildings. Prospective buyers and interested parties are strongly advised to independently verify the precise location and surroundings before bidding.