Withdrawn | Lot 40

Church Farm Cottage, Back Road, Pentney, King's Lynn, Norfolk PE32 1JW

Withdrawn

  • Detached House
  • 2 Bedrooms
  • Tenure: Freehold

Call the team on 01553 777 773 for more information

Auction Date

Wed 10/09/2025

Auction Time

10:00

Auction Venue

Livestream Auction

Detached cottage in need of modernisation set in a generous plot within the rural village of Pentney near King's Lynn.

Church Farm Cottage has great potential and is situated in a generous plot within the centre of village of Pentney. In need of modernisation this two bedroom detached cottage offers a family home with scope for extension to the west gable (stpp) or for the more adventurous could be divided creating a further plot if planning was sought. A viewing of this property is strongly recommended.

Tenure

Freehold

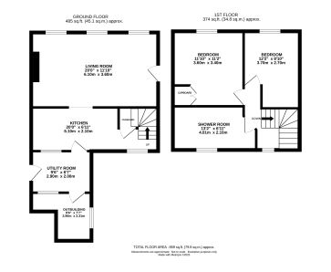
Ground floor

Boot room/utility area, kitchen, lounge/diner, stairs to first floor

First floor

Landing, two double bedrooms and family bathroom

Exterior

Driveway to side of the property with large willow tree to front garden. The garden stretches to the west and rear of the property and is currently laid to lawn.

Council Tax Band

B

Viewings

Viewings are being held by appointment only. Please contact the Norwich Office to book your appointment

Energy Efficiency Rating (EPC)

Current Rating D

Services

Interested parties are requested to make their own enquiries to the relevant authorities as to the availability of services.

Local Authority

Kings Lynn and West Norfolk Borough Council

Solicitors

Birketts (Norwich), Ref: Ellie Opie, Tel: 01603 364658

Important Notice to Prospective Buyers:

We draw your attention to the Special Conditions of Sale within the Legal Pack, referring to other charges in addition to the purchase price which may become payable. Such costs may include Search Fees, reimbursement of Sellers costs and Legal Fees, and Transfer Fees amongst others.

Additional Fees

Buyer's Premium - £960 inc VAT payable on exchange of contracts.

Administration Charge - £1200 inc VAT payable on exchange of contracts.

Disbursements - Please see the legal pack for any disbursements listed that may become payable by the purchaser on completion.

View Larger Map

Disclaimer: The map preview provided above is for general guidance only and may not accurately reflect the exact location or surrounding buildings. Prospective buyers and interested parties are strongly advised to independently verify the precise location and surroundings before bidding.