For Sale By Auction | 10:00, 22 October 2025 | Lot 55

14 Sea View Road, Mundesley, Norwich, Norfolk NR11 8DH

Sold £113,000

  • Semi-Detached House
  • 5 Bedrooms
  • Tenure: Freehold with Flying Freehold

Call the team on 01603 505 100 for more information

Auction Date

Wed 22/10/2025

Auction Time

10:00

Auction Venue

Livestream Auction

This five bedroom semi-detached house with stunning cliff top views.

Of interest to cash buyers only. This spacious five bedroom semi-detached house was built in the late 1800's and has been updated by the current owners since ownership to include external rendering, kitchen and bathroom/shower rooms. The property is generally in good order throughout and is situated in a stunning cliff top position with the four of the bedrooms offering uninterrupted views of the sea. Situated within the Victorian coastal village of Mundesley on the much sought-after North Norfolk coast. Mundesley benefits from a range of shopping facilities to include: Tesco Express post office, shops, hotels and cafes and other amenities including two schools, an excellent 9 hole golf course and a medical centre. There is also bus stops within walking distance providing several bus routes to Cromer, North Walsham and Norwich.

Tenure

Freehold with Flying Freehold

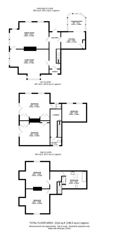
Ground Floor

Covered porch, entrance hall, sitting room, dining room, kitchen and conservatory.

First Floor

Landing Three Double Bedrooms one with an ensuite shower. Separate cloakroom and stairs to second floor.

Second floor

Two double bedroom and large bath/shower room.

Outside

Front shingles garden area and path to front door and enclose wrap around rear garden mainly laid to lawn with paved terrace area.

Agents Note

The property has a Flying Freehold on the second floor of approx. 3-4ft to the rear of the bathroom. The property is located in close proximity to the cliff edge. All buyers are deemed to have made their own enquiries regarding location and associated risks prior to bidding.

Viewings

Viewings are currently being arranged for Monday 20th October. Call the Norwich office to book your appointment.

Energy Efficiency Rating (EPC)

Current Rating D

Services

Interested parties are requested to make their own enquiries to the relevant authorities as to the availability of services.

Local Authority

North Norfolk District Council

Solicitors

Clapham and Collinge (Sheringham), Ref: Frances Culling, Tel: 01603 693513

Important Notice to Prospective Buyers:

We draw your attention to the Special Conditions of Sale within the Legal Pack, referring to other charges in addition to the purchase price which may become payable. Such costs may include Search Fees, reimbursement of Sellers costs and Legal Fees, and Transfer Fees amongst others.

Additional Fees

Buyer's Premium - £960 inc VAT payable on exchange of contracts.

Administration Charge - £1200 inc VAT payable on exchange of contracts.

Disbursements - Please see the legal pack for any disbursements listed that may become payable by the purchaser on completion.

View Larger Map

Disclaimer: The map preview provided above is for general guidance only and may not accurately reflect the exact location or surrounding buildings. Prospective buyers and interested parties are strongly advised to independently verify the precise location and surroundings before bidding.