For Sale By Auction | 10:00, 22 October 2025 | Lot 128

14 Belle Aire Holiday Park, Hemsby, Great Yarmouth, Norfolk NR29 4HS

*Guide | £20,000 - £30,000 (plus fees)

  • Park Home
  • 2 Bedrooms
  • Tenure: Leasehold. 99 years from 11 August 1972

Call the team on 01603 505 100 for more information

Auction Date

Wed 22/10/2025

Auction Time

10:00

Auction Venue

Livestream Auction

Holiday chalet of non standard construction offering a rare 11.5 month occupancy. Situated at the entrance of the popular Belle Aire Holiday Park

Holiday chalet of non standard construction offering a rare 11.5 month occupancy. Situated at the entrance of the popular Belle Aire Holiday Park making it convenient to facilities and for less abled people. The owner has let the property as a holiday home through the on site management company, Care Free Holidays, who organise the bookings, cleaning and turn over dates. Currently let from 1st March to 31st October but this could be extended to 11.5 months if required. The site closes for the last 2 weeks of February every year. The chalet offers open plan sitting room, kitchen/diner, two bedrooms and shower room all in good order throughout. The chalet will be left furnished apart from the television which is rented through the management company. The chalet is situated overlooking a communal lawned square with ample parking. Currently the chalet obtains £250/week low season and £650/week high season yielding £7,800 pa gross. This is a great investment with potential to yield more if managed yourself or would make a small home for a cash buyer.

Tenure

Leasehold. 99 years from 11 August 1972

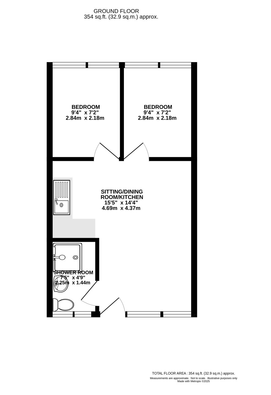
Accommodation

Open plan lounge/diner/kitchen area, two bedrooms, shower room

Outside

There are generous parking areas close to the chalet and the chalet overlooks a communal green.

Viewings

Viewings are offered STRICTLY BY APPOINTMENT ONLY on the following days Tuesday 23rd September Tuesday 7th October Friday 17th October Please contact the Norwich Office to book your appointment time

Lease details

Term: 99 years from 11 August 1972 (46 years unexpired) Lease Terms: Ground rent invoiced in February Annual Service Charge: Invoiced in May and Nov with extension for 11.5 months is added to November payment if required. Service Charge Review Period: Please refer to legal pack Ground Rent Review Period: Please refer to legal pack

Council Tax Band

TBC

Services

Interested parties are requested to make their own enquiries to the relevant authorities as to the availability of services.

Local Authority

Great Yarmouth Borough Council

Solicitors

England and Co (Martham), Ref: Stephanie Warner, Tel: 01493 748174

Important Notice to Prospective Buyers:

We draw your attention to the Special Conditions of Sale within the Legal Pack, referring to other charges in addition to the purchase price which may become payable. Such costs may include Search Fees, reimbursement of Sellers costs and Legal Fees, and Transfer Fees amongst others.

Additional Fees

Buyer's Premium - £480 inc VAT payable on exchange of contracts.

Administration Charge - £1200 inc VAT payable on exchange of contracts.

Disbursements - Please see the legal pack for any disbursements listed that may become payable by the purchaser on completion.

View Larger Map

Disclaimer: The map preview provided above is for general guidance only and may not accurately reflect the exact location or surrounding buildings. Prospective buyers and interested parties are strongly advised to independently verify the precise location and surroundings before bidding.