For Sale By Auction | 10:00, 22 October 2025 | Lot 111

Bethel Gospel Hall, Pier Walk, Gorleston, Great Yarmouth, Norfolk NR31 6DA

Sold £107,000

  • Place of Worship
  • Tenure: Freehold

Call the team on 01603 505 100 for more information

Auction Date

Wed 22/10/2025

Auction Time

10:00

Auction Venue

Livestream Auction

Victorian detached place of worship offering a range of potential uses

A detached freehold building extending to around 158 sq/m. Built in 1883 as Bethel Mission Hall it has been used as a gospel hall for many decades and is now to be sold with vacant possession. It is located close to the seafront and beach in an established residential area and its large main hall offers a range of potential uses including conversion to residential, subject to the necessary consents being obtained. It is not listed nor within a conservation area. An exciting opportunity to give this building a new lease of life.

Tenure

Freehold

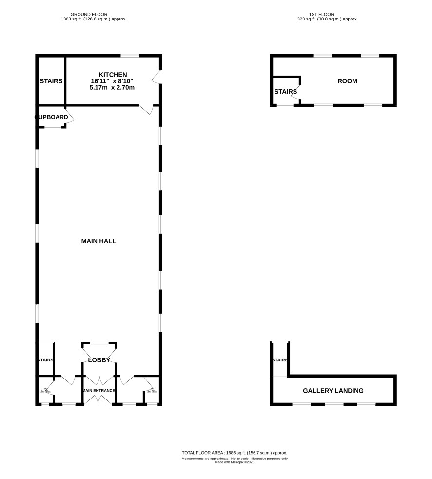
Ground Floor

Main hall area, kitchen, male and female toilets with separate wash rooms

First Floor

Galleried landing, room

Outside

Concrete pathway areas with wrought iron railings surround. Rear pathway access with door to integral boiler storage room.

Viewings

Open viewings are arranged on the following days: Thursday 2 October Friday 10 October to book an appointment please call the Norwich office.

Energy Efficiency Rating (EPC)

Current Rating G

Services

Interested parties are requested to make their own enquiries to the relevant authorities as to the availability of services.

Local Authority

Great Yarmouth Borough Council

Solicitors

Norton Peskett (Great Yarmouth), Ref: Matthew Breeze, Tel: 01493 849225

Important Notice to Prospective Buyers:

We draw your attention to the Special Conditions of Sale within the Legal Pack, referring to other charges in addition to the purchase price which may become payable. Such costs may include Search Fees, reimbursement of Sellers costs and Legal Fees, and Transfer Fees amongst others.

Additional Fees

Buyer's Premium - £960 inc VAT payable on exchange of contracts.

Administration Charge - £1200 inc VAT payable on exchange of contracts.

Disbursements - Please see the legal pack for any disbursements listed that may become payable by the purchaser on completion.

View Larger Map

Disclaimer: The map preview provided above is for general guidance only and may not accurately reflect the exact location or surrounding buildings. Prospective buyers and interested parties are strongly advised to independently verify the precise location and surroundings before bidding.