For Sale By Auction | 10:00, 22 October 2025 | Lot 14

14 Willow Lane, Norwich, Norfolk NR2 1EU

*Guide | £300,000 (plus fees)

  • Block of Apartments
  • Tenure: Leasehold. 999 years from 26th June 2015

Call the team on 01603 505 100 for more information

Auction Date

Wed 22/10/2025

Auction Time

10:00

Auction Venue

Livestream Auction

Fine city centre period property in prime location arranged as two maisonettes in good decorative order

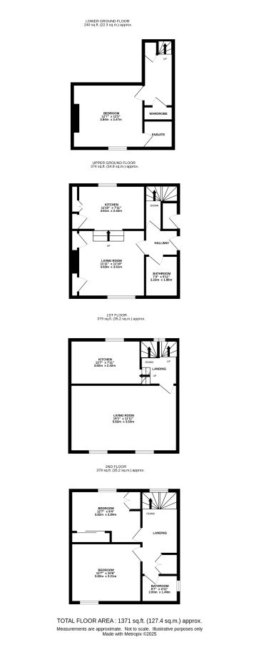
This early 19th century Grade II listed semi detached property is set over three floors and a basement and extends to around 1,371 sq/ft. It is arranged as two self contained residential units. 14 is a one bedroom maisonette covering the lower and ground floors fronting Willow Lane and 14a a two bedroom maisonette covering the upper two floors with attractive views over St Giles church to the rear. It would be possible to combine the two properties into one large single dwelling, although it could offer a good investment return as two self contained units. It would make an ideal purchase for an investor or multi generational owner occupier.

Tenure

Leasehold. 999 years from 26th June 2015

14

Lower ground floor: bedroom, ensuite shower room Upper ground floor: hallway, bathroom, kitchen, sitting room Previously let at £700 pcm (£8,400 pa), now vacant.

14a

First floor: landing, kitchen, living room Second floor: landing, two bedrooms, bathroom

Outside

Side courtyard area with outbuilding

Freehold

We are offering the two leasehold titles NK449673 and NK449675. On completion the freehold title NK409036 will be included. Further details in the legal pack.

Viewings

Open viewings are arranged and are available on: Wednesday 8 October Friday 10 October Friday 17 October Tuesday 21 October Please call the Norwich office to book the next available appointment.

Council Tax Bands

A, B

Energy Efficiency Rating (EPC)

Current Rating D, D

Services

Interested parties are requested to make their own enquiries to the relevant authorities as to the availability of services.

Local Authority

Norwich City Council

Solicitors

Cozens-Hardy LLP, Ref: Dan Evans, Tel: 01603 724676

Important Notice to Prospective Buyers:

We draw your attention to the Special Conditions of Sale within the Legal Pack, referring to other charges in addition to the purchase price which may become payable. Such costs may include Search Fees, reimbursement of Sellers costs and Legal Fees, and Transfer Fees amongst others.

Additional Fees

Administration Charge - £1200 inc VAT payable on exchange of contracts.

Disbursements - Please see the legal pack for any disbursements listed that may become payable by the purchaser on completion.

View Larger Map

Disclaimer: The map preview provided above is for general guidance only and may not accurately reflect the exact location or surrounding buildings. Prospective buyers and interested parties are strongly advised to independently verify the precise location and surroundings before bidding.