For Sale By Auction | 10:00, 22 October 2025 | Lot 56

43 The Green, Upton, Norwich, Norfolk NR13 6AY

*Guide | £275,000 - £325,000 (plus fees)

  • Detached House
  • 5 Bedrooms
  • Tenure: Freehold

Call the team on 01603 505 100 for more information

Auction Date

Wed 22/10/2025

Auction Time

10:00

Auction Venue

Livestream Auction

Charming 17th Century detached farmhouse with outbuildings and grounds which extend to approximately one acre (stms).

A rare opportunity to acquire a detached 17th-century timber-framed farmhouse, remodelled in the 18th century with later additions, now in need of full renovation and modernisation. Offering immense potential for a personal project, investment, or redevelopment (subject to consents), this property is ideal for those looking to restore a characterful period home. Set within mature grounds of approximately 0.70 acre (stms), with an additional woodland/garden area of approximately 0.40 acre (stms), the property provides privacy, scope, and versatility in a highly desirable location.

Tenure

Freehold

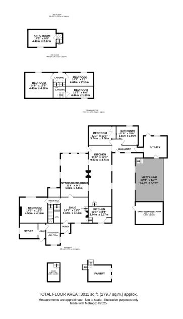
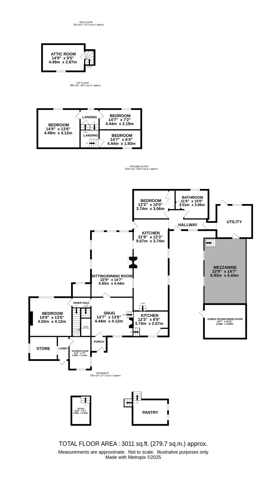
Main Home - Ground Floor

Entrance porch, snug, dining room, kitchen, two bedrooms, bathroom, shower room, storage area and two cellars.

First Floor

Landing, three bedrooms and stairs to second floor.

Second Floor

Attic Room

Outside

A inner hallway and access to utility and games room/cinema with access to garage. The main grounds are enclose to the rear with various trees and mainly laid to lawn. Accessed via the rear or to the side via the public food path there is a separate parcel of land.

Agents Note

A small fenced area to the front is being retained by the vendor. The parcel of land within the title to the rear has been split and is clearly defined by fencing and has been sold previously and is being registered with another title number.

Council Tax Band

Band E

Viewings

Viewings are being arranged and there are opportunities to view on the following days: Tuesday 7th October Wednesday 8th October Friday 10th October Tuesday 14th October Friday 17th October Please call Norwich office to book your appointment.

Energy Efficiency Rating (EPC)

Current Rating E

Services

Interested parties are requested to make their own enquiries to the relevant authorities as to the availability of services.

Local Authority

Broadland District Council

Solicitors

Lucas and Wyllys (Gorleston), Ref: Amy Church, Tel: 01493 663124

Important Notice to Prospective Buyers:

We draw your attention to the Special Conditions of Sale within the Legal Pack, referring to other charges in addition to the purchase price which may become payable. Such costs may include Search Fees, reimbursement of Sellers costs and Legal Fees, and Transfer Fees amongst others.

Additional Fees

Buyer's Premium - £960 inc VAT payable on exchange of contracts.

Administration Charge - £1200 inc VAT payable on exchange of contracts.

Disbursements - Please see the legal pack for any disbursements listed that may become payable by the purchaser on completion.

View Larger Map

Disclaimer: The map preview provided above is for general guidance only and may not accurately reflect the exact location or surrounding buildings. Prospective buyers and interested parties are strongly advised to independently verify the precise location and surroundings before bidding.