For Sale By Auction | 10:00, 22 October 2025 | Lot 46

The Farmhouse, The Elms Farm, Great North Road, Wittering, Peterborough PE8 6HH

*Guide | £575,000 (plus fees)

  • Farm House
  • 8 Bedrooms
  • Tenure: Freehold

Call the team on 01733 889833 for more information

Auction Date

Wed 22/10/2025

Auction Time

10:00

Auction Venue

Livestream Auction

A detached Grade II listed eight bedroom, seven reception former farmhouse in need of completion of building works set in over four acres of grounds

A detached eight bedroom former Farmhouse is located just of the A1 trunk road North of Peterborough. The current owners have started to renovate the property however it still requires completing. Benefitting from eight bedrooms seven reception rooms, studio above the garage complex and accommodation on three levels. Outside provides over four acres of grounds and spectacular views over the surrounding countryside. Peterborough provides shopping and recreational faculties together with a main line rail link into London and the North.

Tenure

Freehold

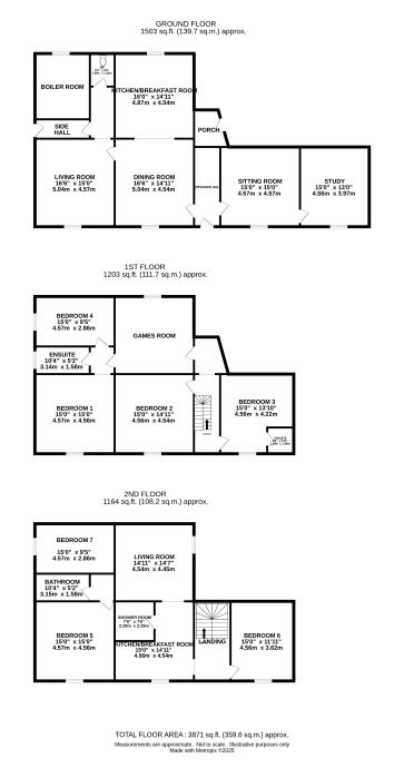
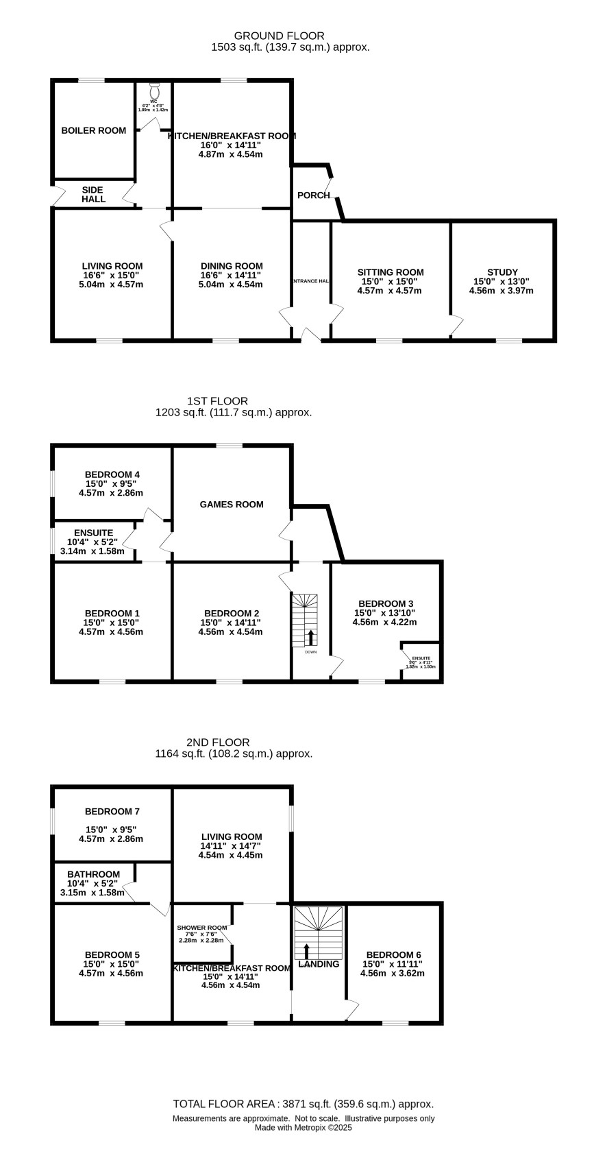
Ground floor

Hall, lounge, sitting room, study, dining room, living room, kitchen/breakfast room, side porch and a boiler room.

First floor

Landing, four bedrooms, games room, bathroom and en-suite.

Second floor

Landing, living room, three bedrooms, shower room and a bathroom.

Services

Interested parties are requested to make their own enquiries to the relevant authorities as to the availability of services.

Local Authority

Peterborough City Council

Solicitors

Hunt & Coombs (Peterborough), Ref: Pippa Woodcock, Tel: 01832 270529

Important Notice to Prospective Buyers:

We draw your attention to the Special Conditions of Sale within the Legal Pack, referring to other charges in addition to the purchase price which may become payable. Such costs may include Search Fees, reimbursement of Sellers costs and Legal Fees, and Transfer Fees amongst others.

Additional Fees

Buyer's Premium - £1200 inc VAT payable on exchange of contracts.

Administration Charge - £1200 inc VAT payable on exchange of contracts.

Disbursements - Please see the legal pack for any disbursements listed that may become payable by the purchaser on completion.

View Larger Map

Disclaimer: The map preview provided above is for general guidance only and may not accurately reflect the exact location or surrounding buildings. Prospective buyers and interested parties are strongly advised to independently verify the precise location and surroundings before bidding.