For Sale By Auction | 10:00, 22 October 2025 | Lot 59

8 Drury Lane, Carbrooke, Thetford, Norfolk IP25 6SJ

*Guide | £180,000 - £200,000 (plus fees)

  • Semi-Detached House
  • 3 Bedrooms
  • Tenure: Freehold

Call the team on 01603 505 100 for more information

Auction Date

Wed 22/10/2025

Auction Time

10:00

Auction Venue

Livestream Auction

Three bedroom semi detached house enjoying countryside views

An opportunity to acquire a three bedroom semi-detached house, which had been tenanted for many years and now offered with vacant possession. Well suited to both owner occupiers and buy-to-let investors, the property enjoys a peaceful rural setting with delightful countryside views to both front and rear. The house has been recently redecorated and carpeted, and benefits from a generous sized rear garden, off road parking to the front, oil-fired central heating and full UPVC double-glazed windows and doors throughout.

Tenure

Freehold

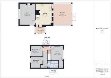
Ground Floor

Entrance porch, kitchen breakfast room, sitting room, conservatory

First Floor

Three bedrooms off landing, main bathroom.

Outside

Shingled area to front for off road parking and generous size rear garden with countryside views to both front and rear.

Council Tax Band

B

Viewings

Viewings are currently being arranged and the next are on Friday 3rd October, Thursday 9th October and Tuesday 14th October. Please call the Norwich office to book your viewing.

Energy Efficiency Rating (EPC)

Current Rating E

Services

Interested parties are requested to make their own enquiries to the relevant authorities as to the availability of services.

Local Authority

Breckland Council

Solicitors

Spire Solicitors LLP (Dereham), Ref: Jane O'Kane, Tel: 01362698858

Important Notice to Prospective Buyers:

We draw your attention to the Special Conditions of Sale within the Legal Pack, referring to other charges in addition to the purchase price which may become payable. Such costs may include Search Fees, reimbursement of Sellers costs and Legal Fees, and Transfer Fees amongst others.

Additional Fees

Buyer's Premium - £960 inc VAT payable on exchange of contracts.

Administration Charge - £1200 inc VAT payable on exchange of contracts.

Disbursements - Please see the legal pack for any disbursements listed that may become payable by the purchaser on completion.

View Larger Map

Disclaimer: The map preview provided above is for general guidance only and may not accurately reflect the exact location or surrounding buildings. Prospective buyers and interested parties are strongly advised to independently verify the precise location and surroundings before bidding.