For Sale By Auction | 10:00, 22 October 2025 | Lot 20

Cedar Crest House (Building Plot), 6 Church Field, Little Plumstead, Norfolk NR13 5FU

*Guide | £250,000 (plus fees)

  • Land
  • Tenure: Freehold

Call the team on 01603 505 100 for more information

Auction Date

Wed 22/10/2025

Auction Time

10:00

Auction Venue

Livestream Auction

Exceptional self-build opportunity – gated parkland setting with planning consent for an 8,000 sq ft contemporary country villa

Set within a gated private estate of just seven homes in 20 acres of parkland, this prime 0.5 acre (stms) plot benefits from planning consent for an exceptional contemporary country villa of around 8,000 sq ft. The design, an enlarged reimagining of the original 5,500 sq ft scheme (still valid), combines architectural distinction with modern family living. Arranged over two levels, the approved plans feature a vaulted entrance hall, multiple reception rooms, vast open-plan kitchen/family space, study, boot room, and cloakroom. The first floor provides six bedroom suites, including a principal suite with dressing room, living room, luxury en suite, and private balcony. Additional amenities include a cinema room, library, laundry, and generous storage. The plot enjoys an elevated position beside a wildlife pond, with parkland views, helicopter access by arrangement, and a private gardening service. Rarely do plots become available in such an exclusive location and this is an opportunity to build a highly desirable forever home or develop out a project for resale.

Tenure

Freehold

Planning

Planning permission has been granted for alterations to an already approved new build development and additional floor area over the garage at Cedar Crest House, 6 Church Field, Little Plumstead. Further details can be found on the Broadland District Council planning portal for reference number 2024/3478

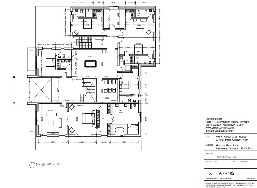
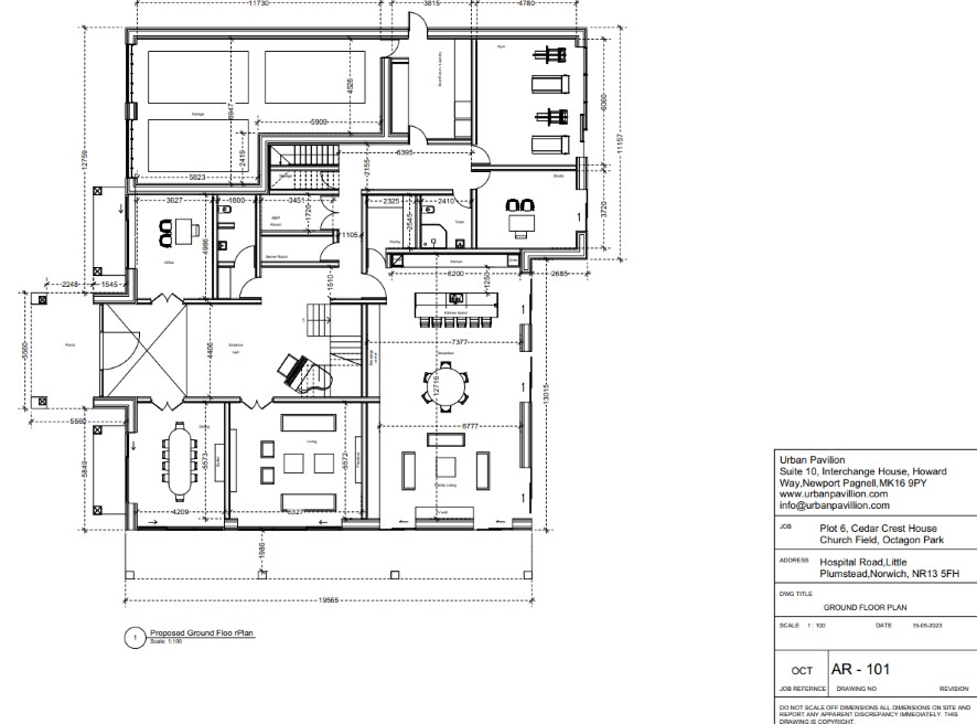
Proposed Accommodation

Grand reception hall, five reception rooms, open plan living kitchen, utility/boot room, media room, six bedrooms all with en-suite facilities, integral triple garage.

Viewing

Any reasonable time during daylight hours. Prospective purchasers should note that no liability can be held against either the vendor or the Agents, Auction House East Anglia as Auctioneers, in respect of any viewing of the land. All persons viewing should be aware that they enter the site entirely at their own risk.

Services

Interested parties are requested to make their own enquiries to the relevant authorities as to the availability of services.

Local Authority

Broadland District Council

Solicitors

Martin Shepherd Solicitors LLP, Ref: Patrick Lee Foo Pin, Tel: 02084464301

Important Notice to Prospective Buyers:

We draw your attention to the Special Conditions of Sale within the Legal Pack, referring to other charges in addition to the purchase price which may become payable. Such costs may include Search Fees, reimbursement of Sellers costs and Legal Fees, and Transfer Fees amongst others.

Additional Fees

Administration Charge - £1200 inc VAT payable on exchange of contracts.

Disbursements - Please see the legal pack for any disbursements listed that may become payable by the purchaser on completion.

View Larger Map

Disclaimer: The map preview provided above is for general guidance only and may not accurately reflect the exact location or surrounding buildings. Prospective buyers and interested parties are strongly advised to independently verify the precise location and surroundings before bidding.