For Sale By Auction | 10:00, 22 October 2025 | Lot 100a

32 Woolgrove Road, Hitchin, Hertfordshire SG4 0AT

*Guide | £275,000 - £300,000 (plus fees)

  • Terraced House
  • 2 Bedrooms
  • Tenure: Freehold

Call the team on 01223 483445 for more information

Auction Date

Wed 22/10/2025

Auction Time

10:00

Auction Venue

Livestream Auction

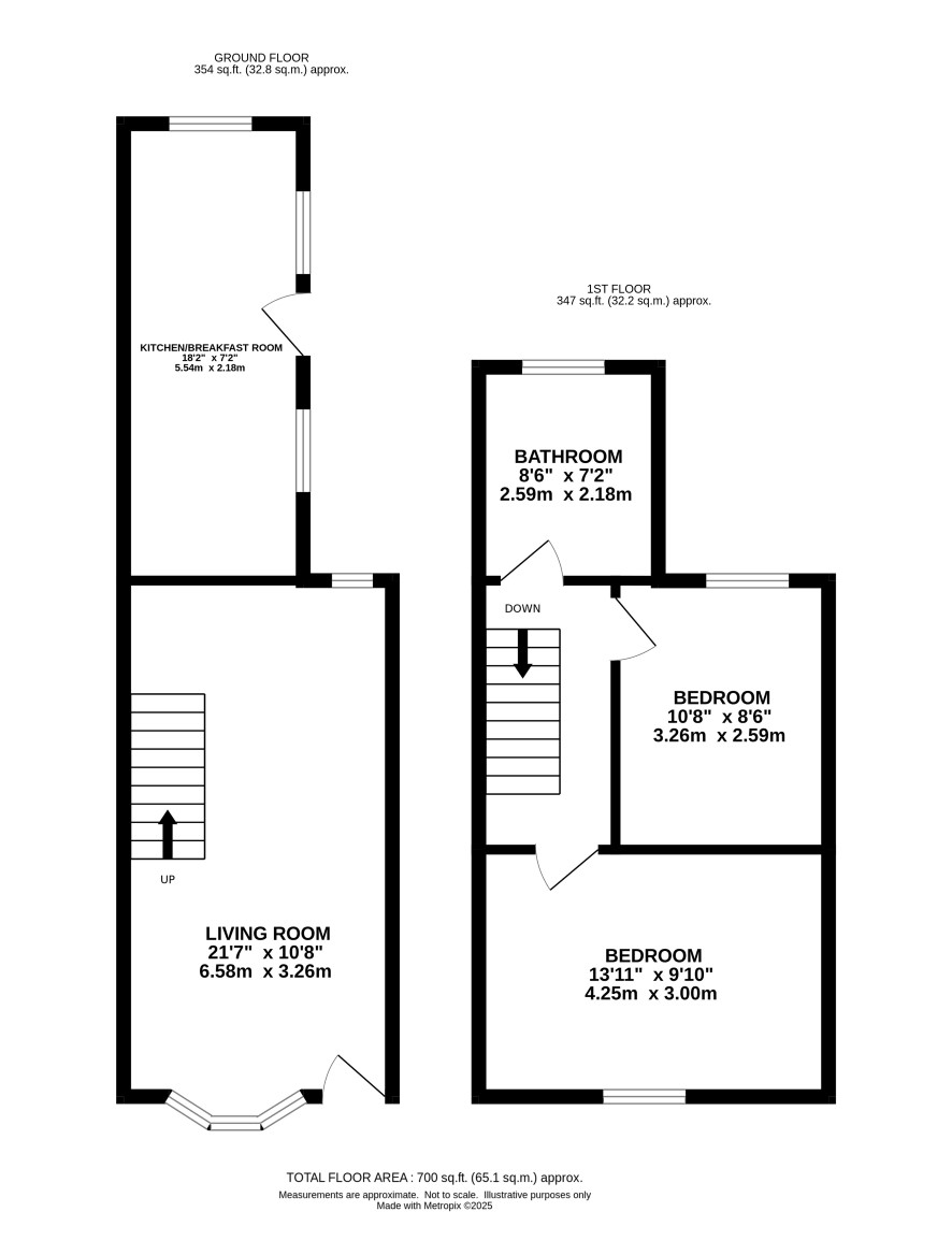
Two bedroom period property within walking distance of Hitchin train station.

The property would ideally suit a owner occupier or as a buy to let investment. The property has a through lounge/dining room, a kitchen/breakfast room and a refitted upstairs bathroom and two double bedrooms. The property has a nice size rear garden which is mainly laid to lawn. Hitchin has good transport links into London via the mainline station and the A1 and good local schooling and facilities.

Tenure

Freehold

Council Tax Band

B

Energy Efficiency Rating (EPC)

Current Rating D

Services

Interested parties are requested to make their own enquiries to the relevant authorities as to the availability of services.

Local Authority

North Hertfordshire District Council

Solicitors

Leathes Prior (The Close), Ref: Rachael Hughes, Tel: 01603 281004

Important Notice to Prospective Buyers:

We draw your attention to the Special Conditions of Sale within the Legal Pack, referring to other charges in addition to the purchase price which may become payable. Such costs may include Search Fees, reimbursement of Sellers costs and Legal Fees, and Transfer Fees amongst others.

Additional Fees

Buyer's Premium - £1200 inc VAT payable on exchange of contracts.

Administration Charge - £1200 inc VAT payable on exchange of contracts.

Disbursements - Please see the legal pack for any disbursements listed that may become payable by the purchaser on completion.

View Larger Map

Disclaimer: The map preview provided above is for general guidance only and may not accurately reflect the exact location or surrounding buildings. Prospective buyers and interested parties are strongly advised to independently verify the precise location and surroundings before bidding.