For Sale By Auction | 10:00, 22 October 2025 | Lot 22A

103 Gloucester Street, Norwich, Norfolk NR2 2DY

*Guide | £275,000 - £300,000 (plus fees)

  • End of Terrace House
  • 4 Bedrooms
  • Tenure: Freehold

Call the team on 01603 505 100 for more information

Auction Date

Wed 22/10/2025

Auction Time

10:00

Auction Venue

Livestream Auction

A vacant hall entrance end terrace house in a highly sought after position

This bay fronted hall entrance terrace house has been successfully tenanted for many years but is now vacant and available for rent or owner occupation. The property has a bay fronted lounge, dining room, breakfast room, kitchen and bathroom on the ground floor with three/four bedrooms off landing on the first floor. The gas boiler has recently been replaced and the property has been redecorated and all carpets have also been replaced. The house is located just off Unthank Road with its useful array of shops, restaurants and other community facilities. The house is also well placed for access to the University and Hospital.

Tenure

Freehold

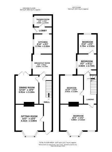
Ground Floor

Hall, lounge, dining room, breakfast room, kitchen, rear lobby, bathroom.

First Floor

Landing, three bedrooms (third bedroom divided into two areas providing potential space for a first floor bathroom or fourth bedroom).

Outside

Small front garden, non-bisected courtyard style rear garden.

Council Tax Band

C

Viewing

Viewings are being held by appointment only and the next are on: Friday 10th and 17th October Please contact the Norwich Office to book your appointment time

Energy Efficiency Rating (EPC)

Current Rating E

Services

Interested parties are requested to make their own enquiries to the relevant authorities as to the availability of services.

Local Authority

Norwich City Council

Solicitors

Ashtons Legal (Norwich), Ref: Simon Parker, Tel: 01603 703070

Important Notice to Prospective Buyers:

We draw your attention to the Special Conditions of Sale within the Legal Pack, referring to other charges in addition to the purchase price which may become payable. Such costs may include Search Fees, reimbursement of Sellers costs and Legal Fees, and Transfer Fees amongst others.

Additional Fees

Buyer's Premium - £600 inc VAT payable on exchange of contracts.

Administration Charge - £1200 inc VAT payable on exchange of contracts.

Disbursements - Please see the legal pack for any disbursements listed that may become payable by the purchaser on completion.

View Larger Map

Disclaimer: The map preview provided above is for general guidance only and may not accurately reflect the exact location or surrounding buildings. Prospective buyers and interested parties are strongly advised to independently verify the precise location and surroundings before bidding.