For Sale By Auction | 10:00, 10 December 2025 | Lot 107

Allen's Bar, 2 Greyfriars Way, Great Yarmouth, Norfolk NR30 2QE

*Guide | £250,000 (plus fees)

  • Pub
  • Tenure: Freehold

Call the team on 01603 505 100 for more information

Auction Date

Wed 10/12/2025

Auction Time

10:00

Auction Venue

Livestream Auction

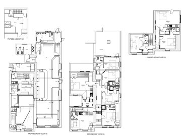
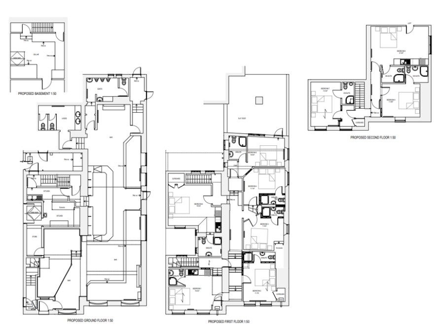
Well-presented and recently established bar premises located in a three-storey building in the heart of Great Yarmouth with planning granted for conversion of 9 letting rooms above.

Re-opening in Summer 2025 and gaining an increasing local following, Allen's Bar is well located close to the Great Yarmouth seafront and town centre. The ground floor is occupied by the pub and was fully refurbished prior to opening and is an attractive trading area. The toilets have also been refurbished and outside is a courtyard garden with further seating. Downstairs is the kitchen and extensive cellar space and storage. Accessed via both the pub or outside are the upper floors which have been granted planning consent for conversion to nine letting rooms ref 06/99/0684/CU. Work has commenced on these that now requires completion. The rooms offer excellent potential to expand the business through visitor and contractor accommodation. With management staff in situ this presents a ready made business development opportunity.

Tenure

Freehold

Business Rates

Current rateable value (1 April 2023 to present) : £9,500

Viewings

Viewings are by appointment only. The next are on Friday 5 December. To book the next available slot please call the Norwich office.

Energy Efficiency Rating (EPC)

Current Rating C

Services

Interested parties are requested to make their own enquiries to the relevant authorities as to the availability of services.

Local Authority

Great Yarmouth Borough Council

Solicitors

Rita Pubco Ltd, Ref: Daniel Ingle, Tel: 07910113795

Important Notice to Prospective Buyers:

We draw your attention to the Special Conditions of Sale within the Legal Pack, referring to other charges in addition to the purchase price which may become payable. Such costs may include Search Fees, reimbursement of Sellers costs and Legal Fees, and Transfer Fees amongst others.

Additional Fees

Buyer's Premium - £1260 inc VAT payable on exchange of contracts.

Administration Charge - £1200 inc VAT payable on exchange of contracts.

Disbursements - Please see the legal pack for any disbursements listed that may become payable by the purchaser on completion.

View Larger Map

Disclaimer: The map preview provided above is for general guidance only and may not accurately reflect the exact location or surrounding buildings. Prospective buyers and interested parties are strongly advised to independently verify the precise location and surroundings before bidding.