For Sale By Auction | 10:00, 10 December 2025 | Lot 75

282b Bramford Road, Ipswich, Suffolk IP1 4AY

*Guide | £60,000 - £70,000 (plus fees)

  • Flat
  • 1 Bedroom
  • Tenure: Leasehold.

Call the team on 01473 558 888 for more information

Auction Date

Wed 10/12/2025

Auction Time

10:00

Auction Venue

Livestream Auction

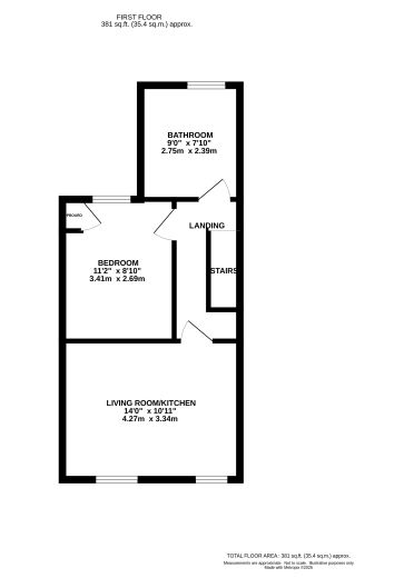
A well presented first floor flat on the west side of Ipswich

Offering excellent rental potential is this first floor flat forming part of a house conversion. The property offers one bedroom accommodation which includes a living room/kitchen with built-in appliances, double glazing and central heating. Offered for sale with vacant possession and ready for immediate occupation this is an investment opportunity not to be missed.

Tenure

Leasehold.

Leasehold Information

Term : From and including 1 January 2007 to and including 31 December 2132 (108 years remaining) Annual Ground Rent Amount : £200 Ground Rent Review Period : Please refer to Legal Pack Annual Service Charge Amount : £1234 Service Charge Review Period : Please refer to Legal Pack

Council Tax Band

A

Energy Efficiency Rating (EPC)

Current Rating C

Services

Interested parties are requested to make their own enquiries to the relevant authorities as to the availability of services.

Local Authority

Ipswich Borough Council

Solicitors

Smith and Co Solicitors, Ref: Natasha Price, Tel: 01473 228015

Important Notice to Prospective Buyers:

We draw your attention to the Special Conditions of Sale within the Legal Pack, referring to other charges in addition to the purchase price which may become payable. Such costs may include Search Fees, reimbursement of Sellers costs and Legal Fees, and Transfer Fees amongst others.

Additional Fees

Buyer's Premium - £1140 inc VAT payable on exchange of contracts.

Administration Charge - £1200 inc VAT payable on exchange of contracts.

Disbursements - Please see the legal pack for any disbursements listed that may become payable by the purchaser on completion.

View Larger Map

Disclaimer: The map preview provided above is for general guidance only and may not accurately reflect the exact location or surrounding buildings. Prospective buyers and interested parties are strongly advised to independently verify the precise location and surroundings before bidding.