For Sale By Auction | 10:00, 10 December 2025 | Lot 77

442 Bramford Road, Ipswich, Suffolk IP1 5BA

*Guide | £80,000 - £100,000 (plus fees)

  • End of Terrace House
  • 2 Bedrooms
  • Tenure: Freehold

Call the team on 01473 558 888 for more information

Auction Date

Wed 10/12/2025

Auction Time

10:00

Auction Venue

Livestream Auction

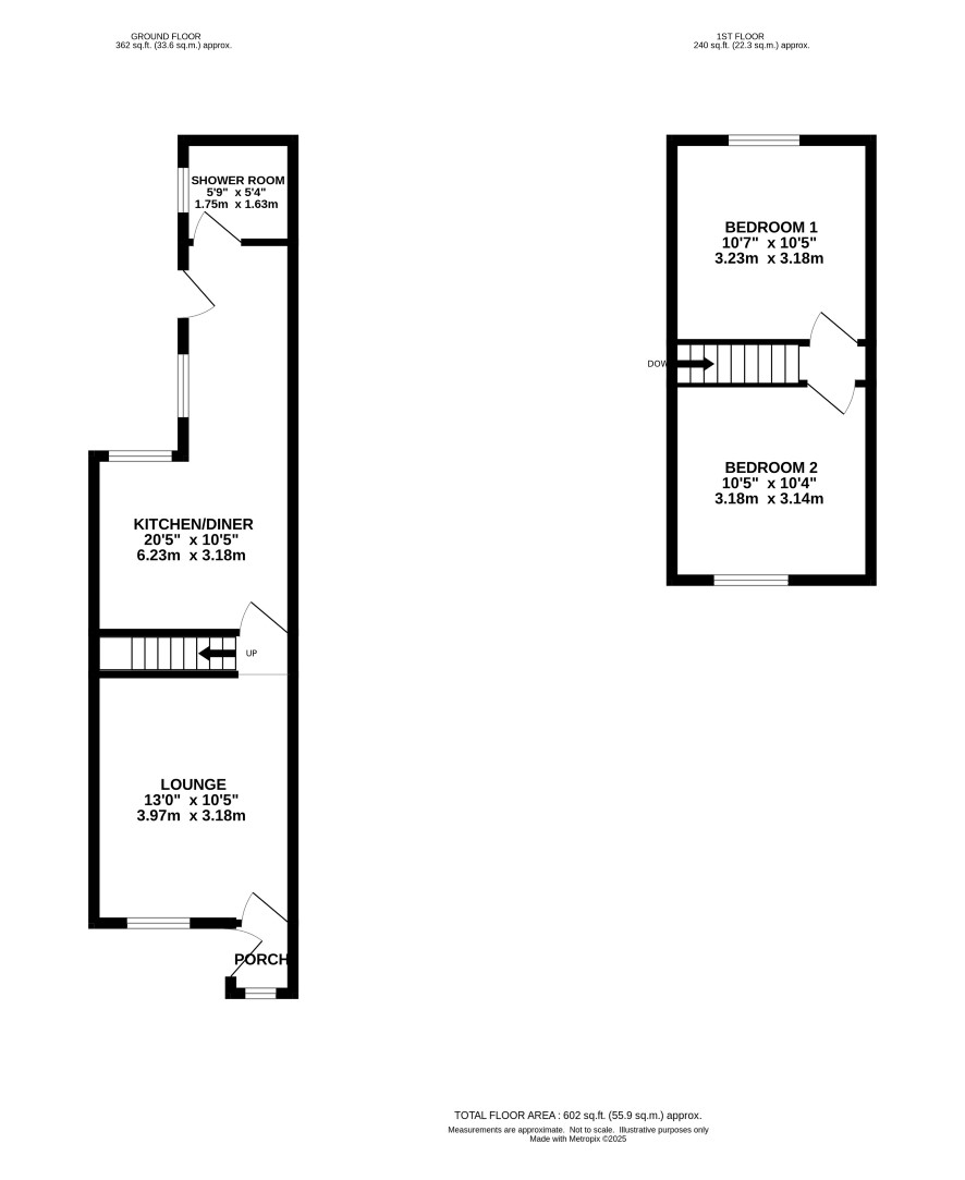
Two bedroom end terraced property with off road parking.

This property features a spacious lounge, an open-plan kitchen and dining area, a downstairs shower room, and two double bedrooms. Outside, there is a storage room and a private garden as well as off road parking to the front of the property. The location provides easy access to local shops, cafes, and amenities, while being just a short walk or drive from the town centre. Excellent transport links, including nearby bus routes and quick connections to the A12 and A14, make it ideal for commuters. **Please note this property requires structural works**

Tenure

Freehold

Council Tax Band

A

Energy Efficiency Rating (EPC)

Current Rating Please refer to Legal Pack

Services

Interested parties are requested to make their own enquiries to the relevant authorities as to the availability of services.

Local Authority

Ipswich Borough Council

Solicitors

Thompson Smith and Puxon, Ref: Catherine Lawrence, Tel: 01255254251

Important Notice to Prospective Buyers:

We draw your attention to the Special Conditions of Sale within the Legal Pack, referring to other charges in addition to the purchase price which may become payable. Such costs may include Search Fees, reimbursement of Sellers costs and Legal Fees, and Transfer Fees amongst others.

Additional Fees

Buyer's Premium - £1200 inc VAT payable on exchange of contracts.

Administration Charge - £1200 inc VAT payable on exchange of contracts.

Disbursements - Please see the legal pack for any disbursements listed that may become payable by the purchaser on completion.

View Larger Map

Disclaimer: The map preview provided above is for general guidance only and may not accurately reflect the exact location or surrounding buildings. Prospective buyers and interested parties are strongly advised to independently verify the precise location and surroundings before bidding.