For Sale By Auction | 10:00, 10 December 2025 | Lot 2

91 Waterworks Road, Norwich, Norfolk NR2 4DB

*Guide | £120,000 - £140,000 (plus fees)

  • Terraced House
  • 3 Bedrooms
  • Tenure: Freehold

Call the team on 01603 505 100 for more information

Auction Date

Wed 10/12/2025

Auction Time

10:00

Auction Venue

Livestream Auction

An end terrace house, now vacant and in need of modernisation

Having been tenanted for many years we are now selling with vacant possession and in need of a general program of modernisation and redecoration. The property which has a gas central heating system has two reception rooms, three bedrooms, a kitchen and ground floor bathroom. There is a non bisected rear gardens and on street parking. Waterworks Road lays to the West of Norwich City centre and is well placed for schools, shops and other community facilities.

Tenure

Freehold

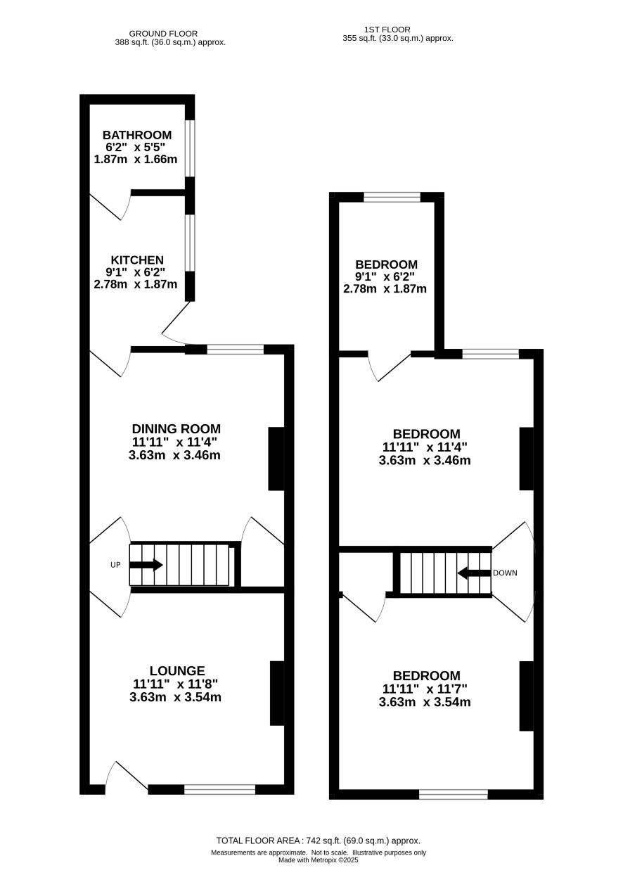
Ground Floor

Lounge, dining room, kitchen, bathroom

First Floor

Three bedrooms

Outside

Small front garden, non bisected rear garden

Council Tax Band

B

Viewings

Open viewings are arranged and the next are on Tuesday 02 December. To book the next available slot please call the Norwich office on 01603 505100.

Energy Efficiency Rating (EPC)

Current Rating E

Services

Interested parties are requested to make their own enquiries to the relevant authorities as to the availability of services.

Local Authority

Norwich City Council

Solicitors

Wilkin Chapman Rollits, Ref: Charlotte Story, Tel: 01482337277

Important Notice to Prospective Buyers:

We draw your attention to the Special Conditions of Sale within the Legal Pack, referring to other charges in addition to the purchase price which may become payable. Such costs may include Search Fees, reimbursement of Sellers costs and Legal Fees, and Transfer Fees amongst others.

Additional Fees

Buyer's Premium - £1200 inc VAT payable on exchange of contracts.

Administration Charge - £1200 inc VAT payable on exchange of contracts.

Disbursements - Please see the legal pack for any disbursements listed that may become payable by the purchaser on completion.

View Larger Map

Disclaimer: The map preview provided above is for general guidance only and may not accurately reflect the exact location or surrounding buildings. Prospective buyers and interested parties are strongly advised to independently verify the precise location and surroundings before bidding.