For Sale By Auction | 10:00, 10 December 2025 | Lot 81a

27-29 Whitehorse Street, Baldock, Hertfordshire SG7 6QF

*Guide | £250,000 - £300,000 (plus fees)

  • Commercial Property
  • Tenure: Freehold

Call the team on 01223 483445 for more information

Auction Date

Wed 10/12/2025

Auction Time

10:00

Auction Venue

Livestream Auction

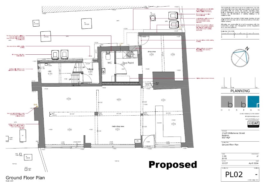
Prime Town Centre Retail Opportunity with Planning Permission for two bedroom apartment

A rare opportunity to acquire a freehold property in a central town centre location with associated parking. Currently arranged as a lock-up shop at ground floor with a stair up to associated storage and kitchen / toilet facilities over part of the first floor. There is a separate and generous stair accessed from the rear of the property leading to the other part of the first floor which has independent offices, with further kitchen and toilet facilities. There is planning permission dated July 2025 to convert the whole of the first floor into generously proportioned residential accommodation whilst retaining reconfigured retail accommodation at ground floor. Under the granted Planning consent, the first floor would be transformed into a spacious apartment with open plan kitchen / dining / living space together with two generous bedrooms and a large family bathroom. The apartment and commercial spaces are fully separated but together, could offer and excellent life / work arrangement. Additional benefits include one parking space and some outdoor space to the rear, making this an ideal investment or owner-occupier property in a prime town centre location.

Tenure

Freehold

Ground Floor

Lock-up retail shop (currently formed from two original dwellings), kitchen and toilet facilities, first-floor storage area, independent access to the first-floor offices

First Floor

Two separate sections currently: Side A: Open-plan layout with stairs from rear, kitchen, and toilet off the landing Side B: Two rooms and a toilet, separated by a solid wall

Outside

One allocated parking space, some outdoor space to the rear.

Planning

Change of use of former first floor office into residential, including internal alterations to form first floor residential unit and to facilitate relocation of retail ancillary space to ground floor has been approved by North Herts Council under reference 25/01333/FP.

VAT

Please note that VAT is applicable to this lot.

Energy Efficiency Rating (EPC)

Current Rating D

Services

Interested parties are requested to make their own enquiries to the relevant authorities as to the availability of services.

Local Authority

North Hertfordshire District Council

Solicitors

Stanton & Partners, Ref: Claire Stanton, Tel: 07557196612

Offered in association with

Satchells Commercial

Important Notice to Prospective Buyers:

We draw your attention to the Special Conditions of Sale within the Legal Pack, referring to other charges in addition to the purchase price which may become payable. Such costs may include Search Fees, reimbursement of Sellers costs and Legal Fees, and Transfer Fees amongst others.

Additional Fees

Buyer's Premium - 1.25% inc VAT of the purchase price, payable on exchange of contracts.

Administration Charge - £1200 inc VAT payable on exchange of contracts.

Disbursements - Please see the legal pack for any disbursements listed that may become payable by the purchaser on completion.

View Larger Map

Disclaimer: The map preview provided above is for general guidance only and may not accurately reflect the exact location or surrounding buildings. Prospective buyers and interested parties are strongly advised to independently verify the precise location and surroundings before bidding.