For Sale By Auction | 10:00, 11 February 2026 | Lot 61

6 Crown Way, Banham, Norwich, Norfolk NR16 2EY

Sold £221,000

  • Detached Bungalow
  • 3 Bedrooms
  • Tenure: Freehold

Call the team on 01603 505 100 for more information

Auction Date

Wed 11/02/2026

Auction Time

10:00

Auction Venue

Livestream Auction

Three bedroom detached bungalow on 0.14 acre plot requiring complete refurbishment

This vacant three bedroom detached bungalow requires a program of refurbishment throughout. It is situated in an established residential area at the end of a cul de sac. The property benefits from double glazing, a good size plot, garage and off road parking. This is an ideal purchase for a builder or investor. Located around six miles south east of Attleborough and seven miles north west of Diss. On instruction of mortgagees.

Tenure

Freehold

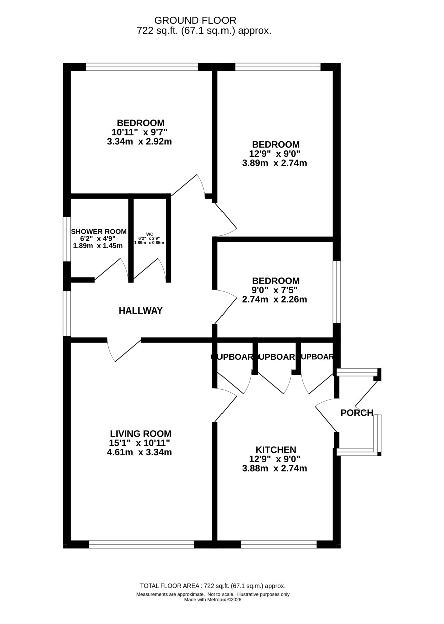
Ground floor

Porch, kitchen, living room, three bedrooms, inner hallway, shower room, wc

Outside

Front and rear garden in need of attention, detached garage, 0.14 acre plot

Council Tax Band

C

Viewings

Viewings are being offered by appointment only on the following days: Monday 2nd February{tab}{tab} Wednesday 4th February{tab} Please contact the Norwich Office to book your appointment time

Energy Efficiency Rating (EPC)

Current Rating F

Services

Interested parties are requested to make their own enquiries to the relevant authorities as to the availability of services.

Local Authority

Breckland Council

Solicitors

Enact Conveyancing, PO Box Hk3, Ref: Enact Conveyancing, Tel: 0344 244 3282

Important Notice to Prospective Buyers:

We draw your attention to the Special Conditions of Sale within the Legal Pack, referring to other charges in addition to the purchase price which may become payable. Such costs may include Search Fees, reimbursement of Sellers costs and Legal Fees, and Transfer Fees amongst others.

Additional Fees

Buyer's Premium - £1560 inc VAT payable on exchange of contracts.

Administration Charge - £1200 inc VAT payable on exchange of contracts.

Disbursements - Please see the legal pack for any disbursements listed that may become payable by the purchaser on completion.

View Larger Map

Disclaimer: The map preview provided above is for general guidance only and may not accurately reflect the exact location or surrounding buildings. Prospective buyers and interested parties are strongly advised to independently verify the precise location and surroundings before bidding.