For Sale By Auction | 10:00, 11 February 2026

The White Horse House, Sea Lane, Old Leake, Boston PE22 9JH

*Guide | £100,000 - £120,000 (plus fees)

  • Detached House
  • 4 Bedrooms
  • Tenure: Freehold

Call the team on 01733 889833 for more information

Auction Date

Wed 11/02/2026

Auction Time

10:00

Auction Venue

Livestream Auction

A detached three bedroom house in need of major renovation works situated in a rural location set in 0.23 of an acre (stms)

This three bedroom house is located in a very rural location and is in need of major renovation throughout. The accommodation offers three reception rooms, conservatory, kitchen, w.c. with three bedrooms and a bathroom on the first floor. Old Leake is located north of Boston and offers a local Co-op store and a school with further facilities found at Boston.

Tenure

Freehold

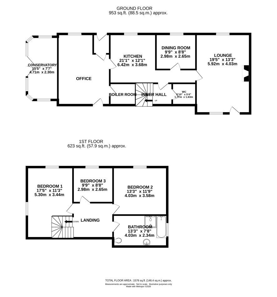
Ground floor

Hall, lounge, dining room, kitchen, study/office, conservatory, boiler room and a w.c.

First Floor

Landing, three bedrooms and a bathroom.

Outside

Gardens of 0.23 of an acre (stms)

Council Tax Band

D

Energy Efficiency Rating (EPC)

Current Rating Please refer to Legal Pack

Services

Interested parties are requested to make their own enquiries to the relevant authorities as to the availability of services.

Local Authority

Lincolnshire County Council

Solicitors

Leathes Prior (The Close), Ref: Rachael Hughes, Tel: 01603 281004

Important Notice to Prospective Buyers:

We draw your attention to the Special Conditions of Sale within the Legal Pack, referring to other charges in addition to the purchase price which may become payable. Such costs may include Search Fees, reimbursement of Sellers costs and Legal Fees, and Transfer Fees amongst others.

Additional Fees

Buyer's Premium - £1200 inc VAT payable on exchange of contracts.

Administration Charge - £1200 inc VAT payable on exchange of contracts.

Disbursements - Please see the legal pack for any disbursements listed that may become payable by the purchaser on completion.

View Larger Map

Disclaimer: The map preview provided above is for general guidance only and may not accurately reflect the exact location or surrounding buildings. Prospective buyers and interested parties are strongly advised to independently verify the precise location and surroundings before bidding.