For Sale By Auction | 10:00, 11 February 2026 | Lot 33

36 Edgefield Road , and 2 West End, Briston, Melton Constable, Norfolk NR24 2HY

Sold £141,000

  • Terraced House
  • 4 Bedrooms
  • Tenure: Freehold

Call the team on 01603 505 100 for more information

Auction Date

Wed 11/02/2026

Auction Time

10:00

Auction Venue

Livestream Auction

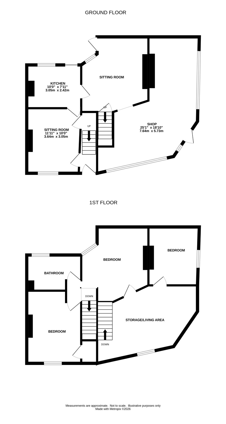
A terrace cottage and adjoining former village shop, redevelopment required

This former village store has been vacant for many years and is now ready for a new lease of life either as a live work unit, a large single dwelling or two cottages. These could be ideal for letting purposes, holiday use or owner occupation. The accommodation in 36 Edgefield Road includes the former shop with a rear living room with three bedrooms above the shop, whilst 2 West End, although connected, comprises of a living room, kitchen and a first floor bedroom and bathroom. With it's two staircases the two properties could be easily subdivided. The house has a small rear courtyard garden. Briston is well located in North Norfolk approximately 4 miles from Holt and within easy travelling distance of the North Norfolk coast, the Norfolk Broads and the city of Norwich.

Tenure

Freehold

36 Edgefield Road, Briston

Shop, living room/possible kitchen, 3 first floor rooms

2 West End, Briston

Hall sitting room, kitchen first floor bedroom, bathroom

Outside

Small courtyard style garden

Viewings

The next viewings are on Friday 23 January. Please call the Norwich office to book an appointment

Rateable Value - 36 Edgefield Road

According to the Valuation office website, the property has a rateable value of £1,675 with effect from 1st April 2023 to present. Please note the valuation office have recorded the premises under postcode NR24 2HX.

Energy Efficiency Rating (EPC)

Current Rating 36 Edgefield Road - D / 2 West End - G

Services

Interested parties are requested to make their own enquiries to the relevant authorities as to the availability of services.

Local Authority

North Norfolk District Council

Solicitors

Spire Solicitors LLP (Norwich), Ref: Tracy Guest, Tel: 01603 886221

Important Notice to Prospective Buyers:

We draw your attention to the Special Conditions of Sale within the Legal Pack, referring to other charges in addition to the purchase price which may become payable. Such costs may include Search Fees, reimbursement of Sellers costs and Legal Fees, and Transfer Fees amongst others.

Additional Fees

Buyer's Premium - £1200 inc VAT payable on exchange of contracts.

Administration Charge - £1200 inc VAT payable on exchange of contracts.

Disbursements - Please see the legal pack for any disbursements listed that may become payable by the purchaser on completion.

View Larger Map

Disclaimer: The map preview provided above is for general guidance only and may not accurately reflect the exact location or surrounding buildings. Prospective buyers and interested parties are strongly advised to independently verify the precise location and surroundings before bidding.