Sold Prior | Lot 71

83 Hayes Road, Clacton-On-Sea, Essex CO15 1TT

Sold Prior

  • End of Terrace House
  • 5 Bedrooms
  • Tenure: Freehold

Call the team on 01473 558 888 for more information

Auction Date

Wed 25/03/2026

Auction Time

10:00

Auction Venue

Livestream Auction

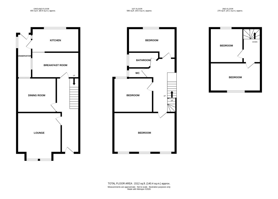
Large five bedroom end terraced property located in the Centre of Clacton on Sea, requiring full refurbishment throughout.

A five-bedroom end-terraced property offering generous accommodation throughout, including two reception rooms, a kitchen diner, one bathroom and a separate WC. The property is in very poor condition and requires full clearance and comprehensive refurbishment, making it ideal for buyers seeking a project. Once renovated, the property offers excellent potential to create a large family home or, subject to the necessary consents, a seven-bedroom HMO investment. The property also benefits from off road parking and small garden to the rear.

Tenure

Freehold

OPEN HOUSE DATES

If you would like to attend any of the dates below, please ensure you confirm attendance with the office. 5th March 10:30am 11th March 13:00pm

Important Information

No internal photographs due to condition. Property requires full clearance.

Energy Efficiency Rating (EPC)

Current Rating D

Services

Interested parties are requested to make their own enquiries to the relevant authorities as to the availability of services.

Local Authority

Test Valley Borough Council

Solicitors

TLT Conveyancing, TLT LLP, Ref: TLT Conveyancing, Tel: 0330 1654201

Important Notice to Prospective Buyers:

We draw your attention to the Special Conditions of Sale within the Legal Pack, referring to other charges in addition to the purchase price which may become payable. Such costs may include Search Fees, reimbursement of Sellers costs and Legal Fees, and Transfer Fees amongst others.

Additional Fees

Buyer's Premium - £1500 inc VAT payable on exchange of contracts.

Administration Charge - £1200 inc VAT payable on exchange of contracts.

Disbursements - Please see the legal pack for any disbursements listed that may become payable by the purchaser on completion.

View Larger Map

Disclaimer: The map preview provided above is for general guidance only and may not accurately reflect the exact location or surrounding buildings. Prospective buyers and interested parties are strongly advised to independently verify the precise location and surroundings before bidding.