For Sale By Auction | 10:00, 25 March 2026

2 John Street, Kings Lynn, Norfolk PE30 5HH

*Guide | £100,000 - £120,000 (plus fees)

  • Terraced House
  • 3 Bedrooms
  • Tenure: Freehold

Call the team on 01553 777 773 for more information

Auction Date

Wed 25/03/2026

Auction Time

10:00

Auction Venue

Livestream Auction

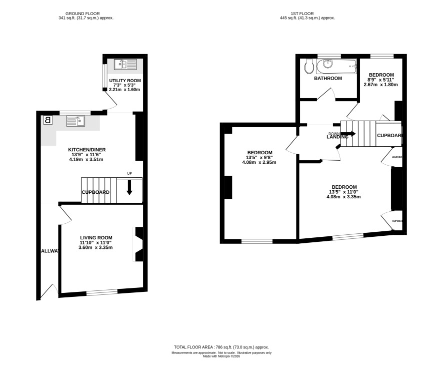
A three bedroom terraced house near to King's Lynn town centre

This well presented three bedroom property is conveniently located near to King's Lynn town centre and railway station. The house briefly comprises living room. kitchen/ breakfast room and utility to the ground floor. On the first floor there are three bedrooms and a bathroom. Outside there is a courtyard garden to rear. The property is located near to the town centre with its range of shopping facilities and mainline railway station to London Kings Cross and Cambridge.

Tenure

Freehold

Ground Floor

Living room, kitchen, utility room

First Floor

Three bedrooms, bathroom

Outside

Courtyard garden

Council Tax Band

B

Energy Efficiency Rating (EPC)

Current Rating D

Services

Interested parties are requested to make their own enquiries to the relevant authorities as to the availability of services.

Local Authority

Kings Lynn and West Norfolk Borough Council

Solicitors

Ellisons Solicitors (Colchester), Ref: Marion Knocker, Tel: 01206 699407

Important Notice to Prospective Buyers:

We draw your attention to the Special Conditions of Sale within the Legal Pack, referring to other charges in addition to the purchase price which may become payable. Such costs may include Search Fees, reimbursement of Sellers costs and Legal Fees, and Transfer Fees amongst others.

Additional Fees

Buyer's Premium - £1200 inc VAT payable on exchange of contracts.

Administration Charge - £1200 inc VAT payable on exchange of contracts.

Disbursements - Please see the legal pack for any disbursements listed that may become payable by the purchaser on completion.

View Larger Map

Disclaimer: The map preview provided above is for general guidance only and may not accurately reflect the exact location or surrounding buildings. Prospective buyers and interested parties are strongly advised to independently verify the precise location and surroundings before bidding.