For Sale By Auction | 10:00, 25 March 2026 | Lot 22

19 Cromer Road, Sheringham, Norfolk NR26 8AB

*Guide | £550,000 - £600,000 (plus fees)

  • Guest House
  • 6 Bedrooms
  • Tenure: Freehold

Call the team on 01603 505 100 for more information

Auction Date

Wed 25/03/2026

Auction Time

10:00

Auction Venue

Livestream Auction

Hooray Henrys is currently a running guest house situated in the North Norfolk village of Sheringham

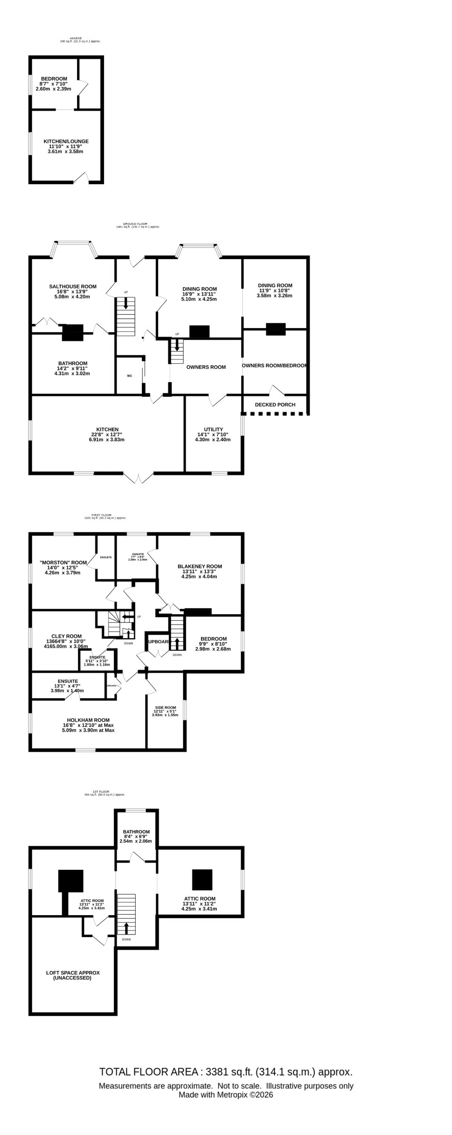
This substantial guest house is currently being run and maintained by the owners after the former sub-let lease of 10 years expired. Not wanting to continue with the business themselves the owners have decided to sell. The house offers six letting rooms all furnished and decorated individually in different styles. There are two rooms on the ground floor and four on the first floor all providing ensuite facilities with a further two in the attic which would need to be granted planning permission and are not currently let. There is also a sitting room, large kitchen and guest dining areas with a further bedroom used for manager accommodation which has its own staircase off the sitting room. The property has been sub-let yielding £3,000 pcm producing an income of £36,000 pa for those looking for an investment/business. In addition to the house there is a detached annexe in the garden offering a management flat or further letting room which is currently let at £750 pcm. For those of you who are interested in creating a substantial family home on the North Norfolk coast the house with some adaptions and updating could become a great family home. Suited to many an investor, home owner or someone looking for a unique business opportunity Hooray Henrys could be what you are searching for.

Tenure

Freehold

Council Tax Band

A (The Galley)

Ground floor

Entrance hall, guest bedroom with ensuite, two dining areas, a further bedroom with ensuite and patio doors with own entrance and private seating area, guest sitting room with staircase to private room for manager, well equipped kitchen

First floor

Landing, four guest rooms with ensuite,

Second floor

Two further rooms and shared bathroom planning would need to be sort to use these rooms currently storage facility

Annexe

Detached annexe is situated behind timber gates and offers sitting room with kitchenette, bedroom and ensuite

Exterior

In and out gravelled driveway provide adequate parking with timber gates opening into the rear garden. The rear garden requires some maintenance and provides a great seating area for all guests.

Viewings

Viewings are available by appointment on the following days. Tuesday 3 March Thursday 5 March Wednesday 11 March Friday 13 March Tuesday 17 March Thursday 19 March Please contact the Norwich Office to book your appointment time.

Energy Efficiency Rating (EPC)

Current Rating E

Services

Interested parties are requested to make their own enquiries to the relevant authorities as to the availability of services.

Local Authority

North Norfolk District Council

Solicitors

Spire Solicitors LLP (Norwich), Ref: Tracy Guest, Tel: 01603 886221

Important Notice to Prospective Buyers:

We draw your attention to the Special Conditions of Sale within the Legal Pack, referring to other charges in addition to the purchase price which may become payable. Such costs may include Search Fees, reimbursement of Sellers costs and Legal Fees, and Transfer Fees amongst others.

Additional Fees

Buyer's Premium - £1140 inc VAT payable on exchange of contracts.

Administration Charge - £1200 inc VAT payable on exchange of contracts.

Disbursements - Please see the legal pack for any disbursements listed that may become payable by the purchaser on completion.

View Larger Map

Disclaimer: The map preview provided above is for general guidance only and may not accurately reflect the exact location or surrounding buildings. Prospective buyers and interested parties are strongly advised to independently verify the precise location and surroundings before bidding.