For Sale By Auction | 10:00, 25 March 2026 | Lot 33

82 Mill Hill Road, Norwich, Norfolk NR2 3DS

Sold £384,000

  • Block of Apartments
  • 5 Bedrooms
  • Tenure: Freehold

Call the team on 01603 505 100 for more information

Auction Date

Wed 25/03/2026

Auction Time

10:00

Auction Venue

Livestream Auction

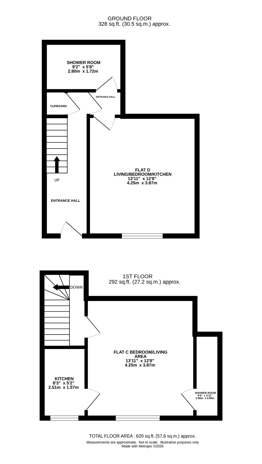
High yielding residential investment producing £31,080 pa. Five let self contained flats

This three storey mid terrace Victorian property is arranged as five self contained flats. Two are one bedroom flats and three are studio flats. It has a total gross internal area of around 210 sq/m. Currently all are let producing £2,590 pcm (£31,080 pa). Flat A is let to a long established tenant on an initial six month assured shorthold tenancy dated 17th August 2020 at £625 pcm (£7,500 pa) Flat B is let to a long established tenant on an initial six month assured shorthold tenancy dated 25th July 2019 at £525 pcm (£6,300 pa) Flat C is let on a six month assured shorthold tenancy dated 26th January 2026 at £525 pcm (£6,300 pa) Flat D is let to a long established tenant on an assured shorthold tenancy dated 28th September 2020 at £510 pcm (£6,120 pa) Flat E is let to a very long established tenant on an initial six assured shorthold tenancy dated 3rd August 2001 at £405 pcm (£4,860 pa) This is an ideal opportunity for an investor looking for a high yielding investment. On instruction of executors.

Tenure

Freehold

Flat A (50 sq/m)

Second floor: bedroom, living room, kitchen, bathroom

Flat B (34 sq/m)

First floor: living room / bedroom / kitchen, bathroom

Flat C (26 sq/m)

First floor: living room / bedroom / kitchen, bathroom

Flat D (23 sq/m)

Ground floor: living room / bedroom / kitchen, bathroom

Flat E (33 sq/m)

Ground floor: bedroom, living room, kitchen, bathroom

Outside

Front and rear garden.

Council Tax Band

A

Note

The photos of the flats were taken before the tenant moved in.

Viewings

Viewings by arrangement with each tenant and by appointment only, as follows: To view Flats A, B, E Saturday 14 March Saturday 21 March To view Flats C, D Tuesday 10 March Tuesday 17 March Please note that no further dates are being offered. To book an appointment please contact the Norwich office.

Energy Efficiency Rating (EPC)

Current Rating 82a: E, 82b: C. 82c: D, 82d: E, 82e: E

Services

Interested parties are requested to make their own enquiries to the relevant authorities as to the availability of services.

Local Authority

Norwich City Council

Solicitors

Rogers and Norton (Norwich), Ref: Steven Clarke, Tel: 01603 666001

Important Notice to Prospective Buyers:

We draw your attention to the Special Conditions of Sale within the Legal Pack, referring to other charges in addition to the purchase price which may become payable. Such costs may include Search Fees, reimbursement of Sellers costs and Legal Fees, and Transfer Fees amongst others.

Additional Fees

Buyer's Premium - £600 inc VAT payable on exchange of contracts.

Administration Charge - £1200 inc VAT payable on exchange of contracts.

Disbursements - Please see the legal pack for any disbursements listed that may become payable by the purchaser on completion.

View Larger Map

Disclaimer: The map preview provided above is for general guidance only and may not accurately reflect the exact location or surrounding buildings. Prospective buyers and interested parties are strongly advised to independently verify the precise location and surroundings before bidding.