For Sale By Auction | 10:00, 25 March 2026 | Lot 112

National House 4 Spitfire Close, Ermine Business Park, Stukeley Road, Huntingdon, Cambridgeshire PE29 6XY

*Guide | £140,000 (plus fees)

  • Office
  • Tenure: Freehold

Call the team on 01733 889833 for more information

Auction Date

Wed 25/03/2026

Auction Time

10:00

Auction Venue

Livestream Auction

A freehold block of four offices with nine parking spaces on the edge of Huntingdon with potential for change of use to residential subject to planning permission

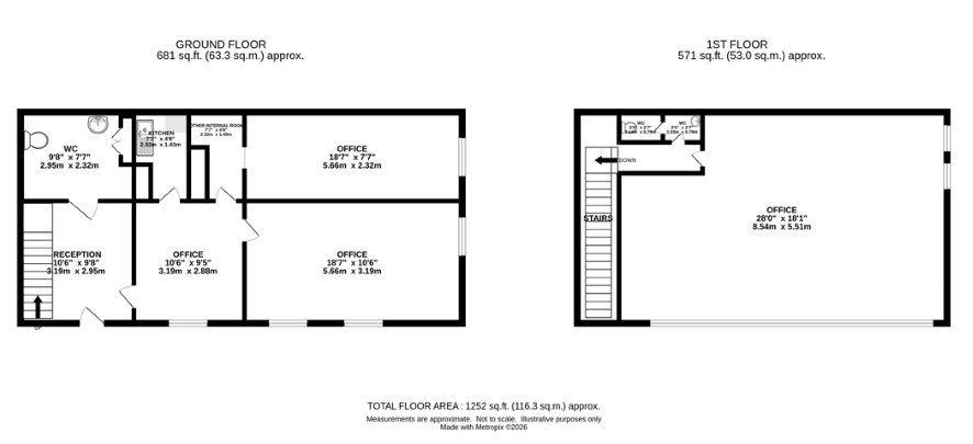
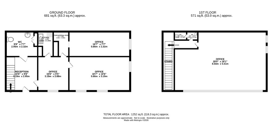
This office block is located on the Ermine Business Park on the edge of Huntingdon. The property comprises four office suites, including a spacious communal office on the first floor the with a W.C. The ground floor further benefits from three individual offices, a fitted kitchen, and a separate W.C. The offices have been refurbished with new flooring and LED lighting. Outside provides nine parking spaces. The potential rental income is £16,000 pa and the rates payable are £14,500 pa. Several of the office blocks in Spitfire Way have had a change of use to residential flats. Huntingdon offers a variety of shops and recreational facilities together with a main line rail link into London Kings Cross.

Tenure

Freehold

Ground Floor

Reception, three ground floor offices, kitchen, w.c.

First Floor

Landing, large office, w.c,

Outside

Nine parking spaces.

Energy Efficiency Rating (EPC)

Current Rating D

Services

Interested parties are requested to make their own enquiries to the relevant authorities as to the availability of services.

Local Authority

Huntingdonshire District Council

Solicitors

Collings Solicitors, Ref: Ben Jordan, Tel: 0161 928 5558

Important Notice to Prospective Buyers:

We draw your attention to the Special Conditions of Sale within the Legal Pack, referring to other charges in addition to the purchase price which may become payable. Such costs may include Search Fees, reimbursement of Sellers costs and Legal Fees, and Transfer Fees amongst others.

Additional Fees

Buyer's Premium - £1200 inc VAT payable on exchange of contracts.

Administration Charge - £1200 inc VAT payable on exchange of contracts.

Disbursements - Please see the legal pack for any disbursements listed that may become payable by the purchaser on completion.

View Larger Map

Disclaimer: The map preview provided above is for general guidance only and may not accurately reflect the exact location or surrounding buildings. Prospective buyers and interested parties are strongly advised to independently verify the precise location and surroundings before bidding.