For Sale By Auction | 10:00, 25 March 2026 | Lot 24

49 Sandringham Road, Norwich, Norfolk NR2 3RZ

*Guide | £250,000 (plus fees)

  • Terraced House
  • 3 Bedrooms
  • Tenure: Freehold

Call the team on 01603 505 100 for more information

Auction Date

Wed 25/03/2026

Auction Time

10:00

Auction Venue

Livestream Auction

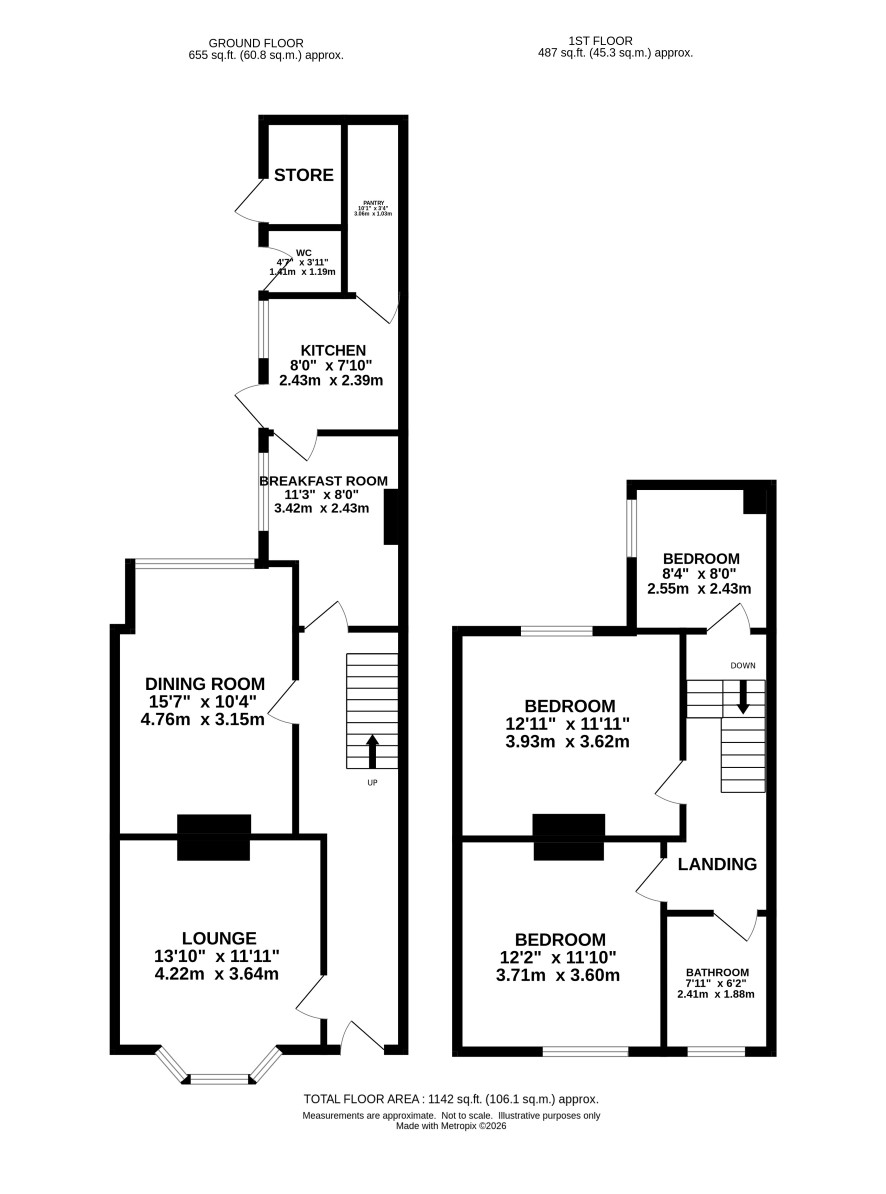
An over the passage hall entrance terrace house requiring modernisation

A spacious hall entrance terrace house arranged over two floors presenting an excellent opportunity for purchasers seeking a full renovation project. The property has an “over the passage” layout, providing a larger third bedroom compared with standard terraces of this style. The accommodation comprises an entrance hall, sitting room, dining room, breakfast room and kitchen to the ground floor. To the first floor are three bedrooms and a family bathroom all off landing. Externally, there is a non-bisected south facing rear garden. The house now requires comprehensive modernisation and refurbishment throughout. However, it offers excellent scope to add value and create a superb home in a consistently strong letting and resale location. Sandringham Road lies within easy reach of Norwich City Centre, local amenities, schooling and regular public transport links. Properties in this area are perennially popular with owner-occupiers, investors and developers alike. An ideal opportunity for builders, investors or buyers seeking a project.

Tenure

Freehold

Ground Floor

Hall, lounge, dining room, breakfast room, kitchen, pantry

First Floor

Landing, three bedrooms, bathroom

Outside

Small front garden, long rear garden side passage access.

Council Tax Band

C

Viewings

Open viewings are arranged and the next are on Friday, 13th March. To book an appointment please call the Norwich office

Energy Efficiency Rating (EPC)

Current Rating E

Services

Interested parties are requested to make their own enquiries to the relevant authorities as to the availability of services.

Local Authority

Norwich City Council

Solicitors

Gosschalks, Ref: Charlotte Story, Tel: 01482 324252

Important Notice to Prospective Buyers:

We draw your attention to the Special Conditions of Sale within the Legal Pack, referring to other charges in addition to the purchase price which may become payable. Such costs may include Search Fees, reimbursement of Sellers costs and Legal Fees, and Transfer Fees amongst others.

Additional Fees

Buyer's Premium - £1140 inc VAT payable on exchange of contracts.

Administration Charge - £1200 inc VAT payable on exchange of contracts.

Disbursements - Please see the legal pack for any disbursements listed that may become payable by the purchaser on completion.

View Larger Map

Disclaimer: The map preview provided above is for general guidance only and may not accurately reflect the exact location or surrounding buildings. Prospective buyers and interested parties are strongly advised to independently verify the precise location and surroundings before bidding.