For Sale By Auction | 10:00, 25 March 2026 | Lot 132

10 Crown Road, Gordon Terrace, Great Yarmouth NR30 2JJ

*Guide | £70,000 - £90,000 (plus fees)

  • Terraced House
  • 3 Bedrooms
  • Tenure: Freehold

Call the team on 01603 505 100 for more information

Auction Date

Wed 25/03/2026

Auction Time

10:00

Auction Venue

Livestream Auction

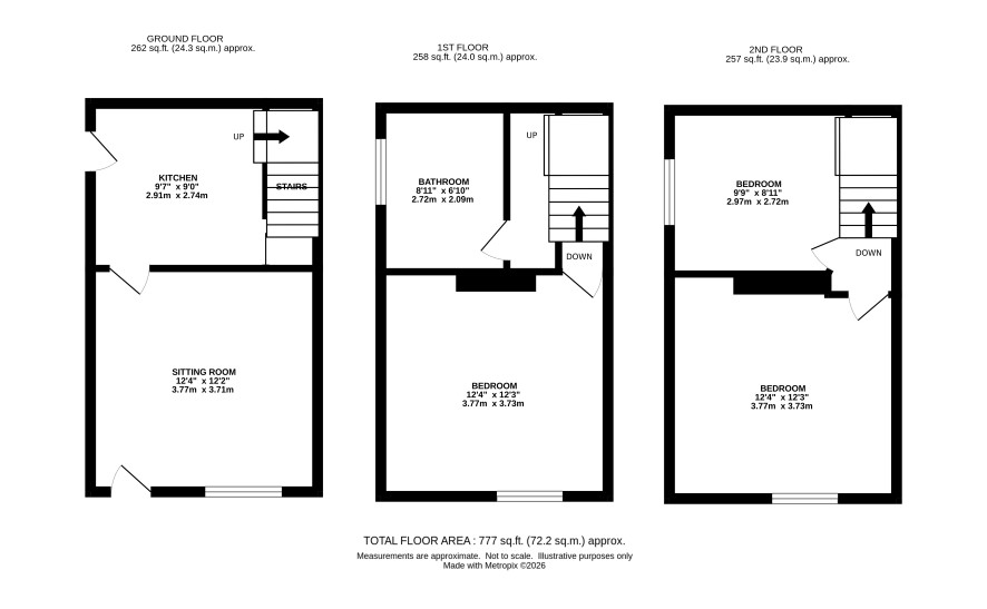
A three storey three bedroom terrace house currently let producing a rental income of £800 pcm £9,600 pa

This three storey mid terrace house has been tenanted for a number of years and is still occupied by tenants under an assured shorthold tenancy agreement paying £800 pcm. The property has a kitchen and living room on the ground floor and three bedrooms and a bathroom on the upper two floors. It is in a tucked away position not far from the town centre and beach.

Tenure

Freehold

Ground Floor

Lounge, kitchen

First Floor

Landing, bedroom, bathroom.

Second Floor

Landing 2 bedrooms

Outside

There is a small shared rear courtyard

Viewings

Viewings are arranged in conjunction with the tenant. The next are on Thursday 19 March. To book an appointment please call the Norwich office.

Energy Efficiency Rating (EPC)

Current Rating D

Services

Interested parties are requested to make their own enquiries to the relevant authorities as to the availability of services.

Local Authority

Great Yarmouth Borough Council

Solicitors

UKC Legal Solicitors, 38 Prince of Wales Road, Ref: UKC Legal Solicitors

Important Notice to Prospective Buyers:

We draw your attention to the Special Conditions of Sale within the Legal Pack, referring to other charges in addition to the purchase price which may become payable. Such costs may include Search Fees, reimbursement of Sellers costs and Legal Fees, and Transfer Fees amongst others.

Additional Fees

Buyer's Premium - £600 inc VAT payable on exchange of contracts.

Administration Charge - £1200 inc VAT payable on exchange of contracts.

Disbursements - Please see the legal pack for any disbursements listed that may become payable by the purchaser on completion.

View Larger Map

Disclaimer: The map preview provided above is for general guidance only and may not accurately reflect the exact location or surrounding buildings. Prospective buyers and interested parties are strongly advised to independently verify the precise location and surroundings before bidding.